Ray White Mangere Bridge
20B Coronation Road
Mangere Bridge
Auckland 2022
Listing #:
MGR33522
Listed:
3 hours ago

Auction (unless sold prior)

Wed 28th Jan 9:00am

#THEDAY A Family Favourite on a Prime Corner Site

16 Hamilton Road, Papatoetoe, Manukau City
Residential House
bedroom
4 Bedrooms
bathroom
2 Bathrooms
ensuite
1 Ensuite
toilet
3 Toilets
carparkgarage
2 Car Garages
carparkoffstreet
2 Offstreet Car Parks
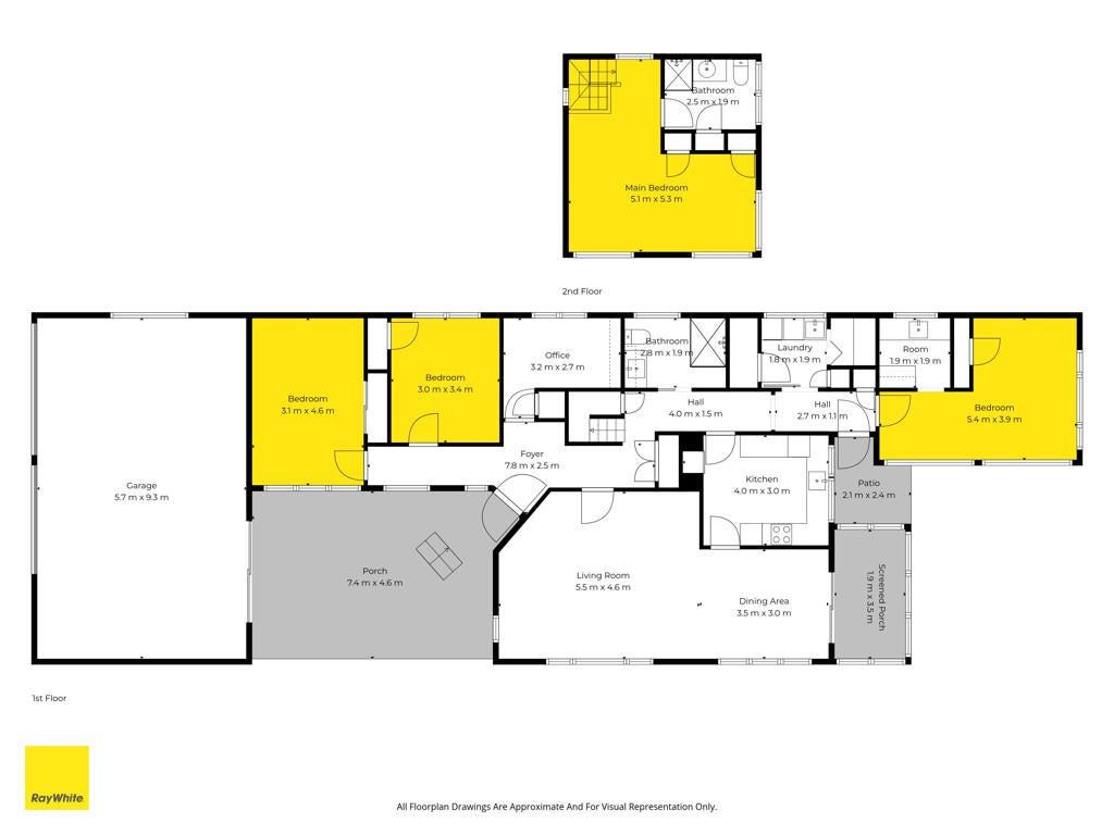
floorarea
174m2 Floor Area
landarea
504m2 Land Area
About this property
Set on a generous 504sqm corner site, this beautifully presented weatherboard family home delivers space, comfort, and outstanding street appeal in one of Papatoetoe's most sought-after locations. Framed by a lush, well-established garden, the home offers a warm and welcoming environment ideal for growing families.

Inside, the layout has been thoughtfully designed standalone with four spacious bedrooms, two bathrooms, and the convenience of three toilets, making everyday family living effortless. The double garage provides secure parking and additional storage, while multiple living areas allow space for everyone to relax and unwind.

Zoned for well-regarded local schools and positioned close to parks, transport, shopping, and community amenities, this is a home that truly supports a family lifestyle.

Key Features:
4 bedrooms, 2 bathrooms, 3 toilets - space and flexibility for the whole family
504sqm corner site with excellent street appeal and a beautiful garden setting
Prime Papatoetoe location, zoned for local schools and close to parks, shops, and transport

**CONJUNCTIONALS WELCOME FROM ALL AGENCIES**

Auction In Rooms Ray White Manukau from 9:00am Wednesday, 28 January 2026 (unless sold prior)

Disclaimer - This property is being sold by auction or without a price and therefore a price guide can not be provided. The website may have filtered the property into a price bracket for website functionality purposes. All prospective purchasers shall complete their own due diligence, seek legal and expert advice, and satisfy themselves with respect to information supplied during the marketing of this property, including but not limited to: the floor and land sizes, boundary lines, underground services, along with any scheme plans or consents.
Check out whether you can get fibre internet
Meet your new neighbours on Neighbourly