Ray White Mangere Bridge
20B Coronation Road
Mangere Bridge
Auckland 2022
Listing #:
MGR33236
Listed:
61 days ago

Enquiries Over $699,000

A Deal You Want & Deal You Will Get

27 Robertson Road, Favona, Manukau City
Residential House
bedroom
3 Bedrooms
bathroom
1 Bathroom
carparkgarage
1 Car Garage
floorarea
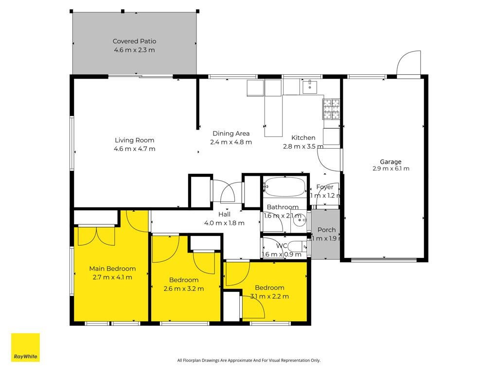
112m2 Floor Area
landarea
307m2 Land Area
About this property
27 Robertson Road is the kind of opportunity smart buyers jump on a solid brick home with great bones, just waiting for its next chapter. Perfect for homeowners wanting to create their dream space or investors looking for their next investment.

With a functional layout and a generous section, the potential here is huge. Refresh the interiors, open up the living spaces, or explore future possibilities the choice is yours. The brick construction gives peace of mind and a strong foundation to build upon.

Solid brick home with 3 bedrooms, 1 bathroom
Large section for family living or future plans
Single internal access garage
Excellent project for homeowners or investors

In a handy Favona location, you're close to Mangere Town Centre, schools, local parks, and major transport links. With easy access to the airport and motorways, this address is both convenient and well-connected. Opportunities like this don't come around often a solid home in a growth location with the chance to make it your own.

**CONJUNCTIONALS WELCOME FROM ALL AGENCIES**

Disclaimer - All prospective purchasers shall complete their own due diligence, seek legal and expert advice, and satisfy themselves with respect to information supplied during the marketing of this property, including but not limited to: the floor and land sizes, boundary lines, underground services, along with any scheme plans or consents.

Sat 6th Dec 4:00pm ~ 4:30pm

Check out whether you can get fibre internet
Meet your new neighbours on Neighbourly