Ray White Pakuranga

Ray White provides a broad range of real estate services from selling your property to property management. Visit our website to see over 12,000 properties on display.

We are a family owned business. When you choose Ray White, you are choosing over 100 years of experience and a name you can trust. We guarantee it!

Contact us to find out how Ray White can help you when it comes to property.

Ray White Pakuranga
Mountfort Estate Agents Ltd Licensed (REAA) 2008)

Real Estate Agents

Ray White Pakuranga
Ray White Pakuranga
Shop G03
102 Pakuranga Road
Pakuranga
Auckland 2010
Listing #:
PAK31270
Listed:
60 days ago

By Negotiation

Title & CCC Issued Move In Today Top school Zone

Lots 3-6/220 Pakuranga Road, Pakuranga Heights, Manukau City
Residential House
bedroom
3 Bedrooms
bathroom
2 Bathrooms
toilet
2 Toilets
carparkgarage
1 Car Garage
About this property
"These are selling fast, Lot 1, Lot 2 and Lot 7 are sold within 4 weeks of marketing. Come to view at our open home or call us to arrange a private viewing before it is all gone! "

Brand new and beautifully finished, these terrace homes at 220 Pakuranga Road deliver modern comfort and everyday convenience in one of East Auckland's most family-friendly neighbourhoods.

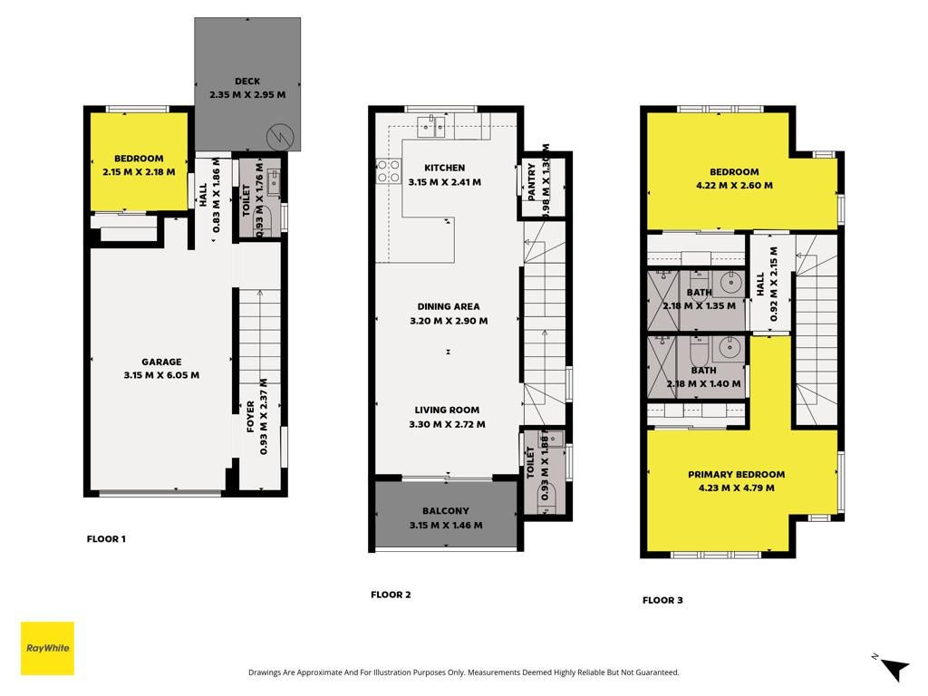
With Title and CCC issued, all that's left to do is move in and enjoy. Each home features a versatile three-bedroom layout, with one bedroom conveniently located on the ground floor - ideal for guests or extended family. Upstairs, the master bedroom with ensuite and an additional bedroom provide space and privacy for the whole family.

Step inside to discover light-filled open-plan living, a sleek modern kitchen, and quality finishes throughout. The covered balcony creates seamless indoor-outdoor flow, perfect for relaxed evenings or morning coffee.

Practical touches - like a single internal garage, double glazing, and premium appliances - make daily life effortless, while the low-maintenance design ensures more time for what matters most.

Set within walking distance to Pakuranga Plaza, local cafes, and transport links, and zoned for Sunnyhills Primary, Farm Cove Intermediate, and Pakuranga College, this location ticks every box.

Whether you're a first-home buyer, a growing family, or an investor seeking a turnkey opportunity, these homes offer unbeatable value in a prime East Auckland setting.
Contact us today to arrange your private viewing - homes of this calibre and convenience don't last long!
Check out whether you can get fibre internet
Meet your new neighbours on Neighbourly