Ray White Pakuranga

Ray White provides a broad range of real estate services from selling your property to property management. Visit our website to see over 12,000 properties on display.

We are a family owned business. When you choose Ray White, you are choosing over 100 years of experience and a name you can trust. We guarantee it!

Contact us to find out how Ray White can help you when it comes to property.

Ray White Pakuranga
Mountfort Estate Agents Ltd Licensed (REAA) 2008)

Real Estate Agents

Ray White Pakuranga
Ray White Pakuranga
Shop G03
102 Pakuranga Road
Pakuranga
Auckland 2010
Listing #:
PAK31230
Listed:
122 days ago

$699,000

Renovated Brick & Tile Beauty

A/16 Grassways Avenue, Pakuranga, Manukau City
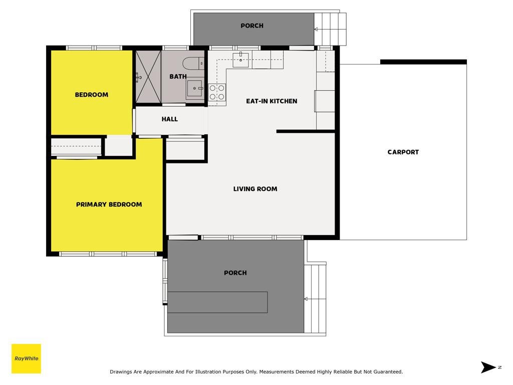
Residential Unit
bedroom
2 Bedrooms
bathroom
1 Bathroom
carparkcovered
1 Covered Car Park
carparkoffstreet
3 Offstreet Car Parks
About this property
This delightful single level property represents the perfect balance of comfort and convenience. Just a short distance to Pakuranga Plaza shopping mall, cafes, restaurants, motorway and the Panmure train station. Whether you're a first home buyer, savvy investor, or looking to downsize without compromise, this is the one you've been waiting for.

Property highlights:
• Solid Brick and Tile 2-bedroom, 1-bathroom unit with spacious living.
• Renovated, beautifully presented, and move-in ready.
• Modern open-plan kitchen with combined dining area.
• The bathroom has wall to wall tiled shower, generous size LED mirror, under floor heating and heated towel rail.
• Front access has a long decking area and roof coverage with a bar bench, providing an excellent outdoor space for entertaining.
• Additional rear deck plus a spacious backyard with room to enjoy the sun or grow your own veggies in pots.
• Comfort features include a heat pump in the living room, underfloor heating and heated towel rail in the bathroom.
• Carport for one car plus rare 3 extra parking spaces on the paved grass area outside the property.

Food lovers and coffee aficionados will take great delight in the location, with some of the city's finest restaurants, cafes, and most popular Pakuranga Night Market virtually on your doorstep.

There's also an array of key amenities, ranging from shops and bus stops to a medical Centre and supermarkets.

This beautiful property is a must see, please contact us today!

Sat 10th Jan 1:30pm ~ 2:00pm

Sat 17th Jan 1:30pm ~ 2:00pm

Sat 24th Jan 1:30pm ~ 2:00pm

Check out whether you can get fibre internet
Meet your new neighbours on Neighbourly