Ray White Howick

Ray White provides a broad range of real estate services from selling your property to property management. Visit our website to see over 12,000 properties on display.

We are a family owned business. When you choose Ray White, you are choosing over 100 years of experience and a name you can trust. We guarantee it!

Contact us to find out how Ray White can help you when it comes to property.

Ray White Howick
Mountfort Estate Agents Ltd Licensed (REAA 2008)

Real Estate Agents

Ray White Howick
Ray White Howick
12 Uxbridge Road
Mellons Bay
Auckland 2014
Listing #:
HOW44378
Listed:
40 days ago

$1,950,000

Loved for Over 50 Years, Now Yours to Call Home!

50 Takutai Avenue, Half Moon Bay, Manukau City
Residential House
bedroom
4 Bedrooms
bathroom
2 Bathrooms
carparkcovered
2 Covered Car Parks
landarea
438m2 Land Area
About this property
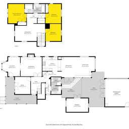
For the first time in over half a century, this one-of-a-kind Half Moon Bay beauty is opening its arms to welcome home its next family. Originally built in the 1940s with art deco flair, the home was lovingly remodelled by its current owners into the elegant villa it is today. As one of the originals on Takutai Avenue - back when horses outnumbered cars and the marina was still a dream - it has stood as the heart of generations, filled with laughter, milestones, and love.

The magic begins the moment you step inside. Solid matai floors guide you through sun-drenched rooms where character meets comfort in perfect harmony. French-style windows and doors bathe every corner in light, while the regal formal lounge with its cosy gas fireplace flows gracefully into a charming sunroom - a space made for slow mornings and quiet reflection.

At the heart of the home, the spacious kitchen opens to a generous family living area with bay seating and wide bifolds spilling onto the private courtyard. Here, the line between indoors and out blurs beautifully, creating a setting that feels both intimate and expansive - ideal for long lunches, summer evenings, and celebrating life's simple joys.

Upstairs, the master suite captures glimpses of the sea, complete with walk-in robe and semi-ensuite. Two additional bedrooms and a second living area offer flexibility for family life, while downstairs, a large study currently serves as a fourth bedroom alongside a full bathroom and separate laundry. A powered standalone shed, perfect as a sleep-out or home office adds even more versatility, complemented by a carpeted double enclosed carport and ample off-street parking.

Positioned on a 438m² site just moments from Bucklands and Eastern Beaches, the marina, and local shops and eateries, this is a rare chance to secure a piece of Half Moon Bay history. Homes like this don't come along often - timeless, soulful, and ready to begin its next chapter.
Check out whether you can get fibre internet
Meet your new neighbours on Neighbourly