Ray White Howick

Ray White provides a broad range of real estate services from selling your property to property management. Visit our website to see over 12,000 properties on display.

We are a family owned business. When you choose Ray White, you are choosing over 100 years of experience and a name you can trust. We guarantee it!

Contact us to find out how Ray White can help you when it comes to property.

Ray White Howick
Mountfort Estate Agents Ltd Licensed (REAA 2008)

Real Estate Agents

Ray White Howick
Ray White Howick
12 Uxbridge Road
Mellons Bay
Auckland 2014
Listing #:
HOW44142
Listed:
124 days ago

Priced to sell $685,000

Vendors are off! This is your opportunity

62/7 Kelvin Hart Drive, East Tamaki, Manukau City
Residential House
bedroom
2 Bedrooms
bathroom
1 Bathroom
toilet
2 Toilets
carparkgarage
1 Car Garage
About this property
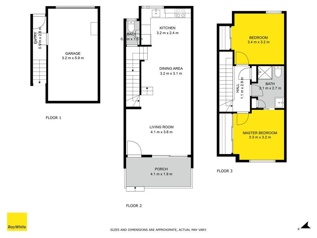
Capture the best of easy living in a stylishly renovated two bedroom townhouse that combines chic modern amenities and lovely views within a cool and welcoming community.

Thoughtful updates have transformed this residence into a contemporary delight, making it the ideal first home, investment gem or downsizer for savvy buyers.

Light-filled open plan living atop fresh flooring encompasses a sleek new kitchen and flows out to your own petite private deck. Sip a morning coffee or evening glass of your favourite and enjoy the peaceful outlook over neighbouring Green Mount Reserve.

Upstairs, both sunny bedrooms are good-sized doubles and share a crisp new bathroom as well as a handy second powder room on the main floor.

You will love coming home to the freshly painted interior with its calming neutral palette inviting you to add your art. The property also comes with great storage as well as your own single internal access garage plus an extra guest carpark.

Part of the highly regarded and well-maintained Cuba complex, as a resident you will also enjoy the use of the swimming pool, gym and the barbecue and entertainment area.

From here you can walk to Botany Town Centre and Botany College and it's an easy commute to East Tamaki for work. The ideal starter home or retirement option, don't delay viewing!
Check out whether you can get fibre internet
Meet your new neighbours on Neighbourly