Ray White Manukau
603 Great South Road
Manukau City Centre
Auckland 2104
Listing #:
MKU45835
Listed:
17 hours ago

Auction (Unless Sold Prior)

Wed 28th Jan 9:00am

#THEDAY Land, Location & Long-Term Potential

10 Stainton Place, Otara, Manukau City
Residential House
bedroom
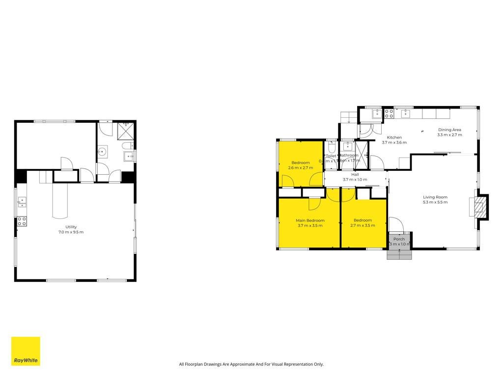
3 Bedrooms
bathroom
1 Bathroom
carparkgarage
1 Car Garage
carparkoffstreet
6 Offstreet Car Parks
floorarea
100m2 Floor Area
landarea
690m2 Land Area
About this property
Tucked away in a quiet cul-de-sac, this 1960s three-bedroom home sits on a 690m2 freehold section, offering space, privacy, and everyday practicality.

The home is neat and well maintained, featuring three bedrooms, one bathroom, and a layout that works comfortably for family living. At the rear of the property, a garage and separate sleep-out add extra flexibility for storage, hobbies, or additional space.

Located in Otara, the property is close to local schools, shops, public transport, and key amenities, making it a convenient option for a wide range of buyers.

With solid land size, a freehold title, and a peaceful street position, this property presents an attractive opportunity for first-home buyers, families, and investors looking for value and long-term potential.

#THEDAY 28th January 2026 from 9:00 am at Ray White Manukau (unless sold prior)

Disclaimer - This property is being sold by auction and therefore a price guide can not be provided. The website may have filtered the property into a price bracket for website functionality purposes. All prospective purchasers shall complete their own due diligence, seek legal and expert advice, and satisfy themselves with respect to information supplied during the marketing of this property, including but not limited to: the floor and land sizes, boundary lines, underground services, along with any scheme plans or consents.
Check out whether you can get fibre internet
Meet your new neighbours on Neighbourly