Ray White Mangere Bridge
20B Coronation Road
Mangere Bridge
Auckland 2022
Listing #:
MGR33519
Listed:
3 hours ago

Auction (unless sold prior)

Wed 28th Jan 9:00am

#THEDAY You Find Your New Home!

19 Rukumoana Place, Clendon Park, Manukau City
Residential House
bedroom
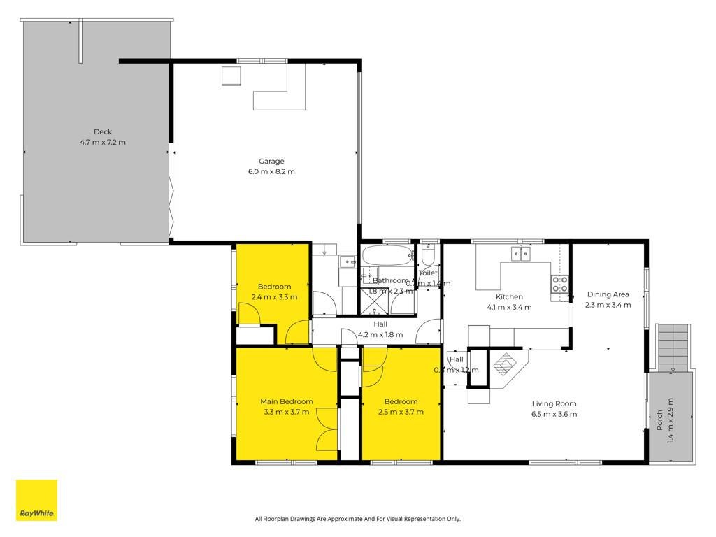
3 Bedrooms
bathroom
1 Bathroom
carparkgarage
2 Car Garages
floorarea
130m2 Floor Area
landarea
638m2 Land Area
About this property
With the owners committed to relocating, this much-loved home must be sold as soon as possible. Opportunities like this do not last long in Clendon Park, so if you are looking for a warm and welcoming property with space to enjoy and entertain, this is one you need to inspect. Private viewings are strongly encouraged to fully appreciate what is on offer.

This cozy and well-presented three-bedroom, one-bathroom home offers comfortable family living with excellent indoor-outdoor flow. The living area opens out to a generous deck and BBQ space, perfect for entertaining or unwinding with family and friends. The spacious front and backyard provide plenty of room for children, pets, or future landscaping, while the double garage offers secure parking and valuable storage.

3 well-sized bedrooms
1 bathroom
Double garage
Sunny deck and BBQ area
Spacious front and backyard
Ideal for families or first-home buyers

Located in a quiet cul-de-sac in Clendon Park, the property is close to local schools, childcare centres, parks, and shopping amenities. Zoned for nearby primary and secondary schools, with easy access to public transport and main arterial routes including SH20, commuting to Manukau, Auckland Airport, and the CBD is convenient and stress-free.

**CONJUNCTIONALS WELCOME FROM ALL AGENCIES**

Auction In Rooms Ray White Manukau from 9:00am Wednesday, 28 January 2026 (unless sold prior)

Disclaimer - This property is being sold by auction or without a price and therefore a price guide can not be provided. The website may have filtered the property into a price bracket for website functionality purposes. All prospective purchasers shall complete their own due diligence, seek legal and expert advice, and satisfy themselves with respect to information supplied during the marketing of this property, including but not limited to: the floor and land sizes, boundary lines, underground services, along with any scheme plans or consents.
Check out whether you can get fibre internet
Meet your new neighbours on Neighbourly