Collective First National - Johnsonville

At Collective we’re passionate about helping people get the most out of life.

From finding that first special place to call home, to upsizing, downsizing and investing, we’re by your side through some of life’s biggest transitions

Property Consultants

Collective First National  - Johnsonville
Collective First National - Johnsonville
20 Johnsonville Road
Johnsonville
Wellington 6037
Listing #:
L33467683
Listed:
5 days ago

Deadline Sale 11:00am Wednesday 7th January 2026

Prime Position on Petherick? YIP!

11 Petherick Crescent, Johnsonville, Wellington
Residential House
bedroom
3 Bedrooms
bathroom
1 Bathroom
toilet
1 Toilet
carparkgarage
1 Car Garage
carparkoffstreet
1 Offstreet Car Park
floorarea
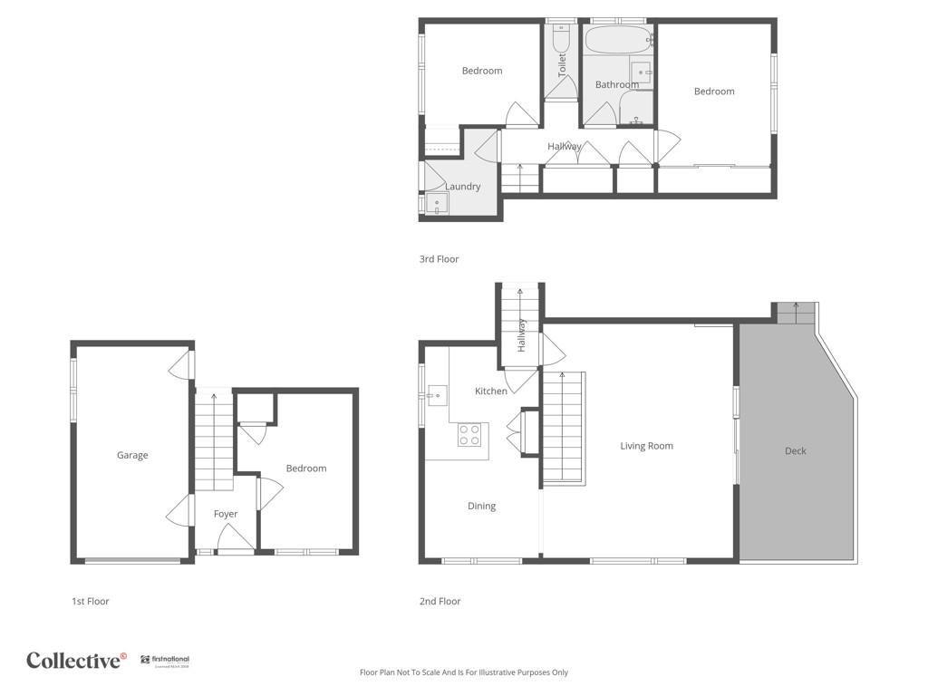
130m2 Floor Area
About this property
If you've been waiting for a place where the location does the heavy lifting, this sunny stand alone home is one you'll want to see. Set within easy walking distance of Johnsonville township, it puts cafes, shops, supermarkets and public transport right on your doorstep, turning busy days into easy ones.

Inside the home is warm, welcoming and well laid out. Your main living spaces have been modernised so just bring in the furniture and call this home for the new year. Enjoy the sheltered decking off the lounge space, perfect for summer barbecues and entertaining! Three well proportioned bedrooms offer flexibility with the layout doing you a favour; two bedrooms on the top floor and one down, creates separation for teenagers, flatties or just a smart investment.

Classic weatherboard construction gives the home timeless appeal, and being fully stand alone means you can enjoy your own space without shared walls. The garage adds valuable storage or secure parking, and the sunny aspect ensures the home feels bright and comfortable throughout the day.

Perfect for first home buyers wanting to get into a sought after suburb, downsizers looking for convenience, or investors who know the value of a prime location; this is an opportunity that simply makes sense. Homes this close to Johnsonville don't stay on the market for long.

Contact Richard Ho and William YIP & Linda Huynh, Team YIP at 0225 647 439 for your private viewing today!

Deadline Sale 11:00am Wednesday 7th January 2026 (unless sold prior)

Builders and LIM report will be available.

Marketed by Team YIP - #1 Local Real Estate Team

www.TeamYIP.co.nz...

Thinking of Selling? Let us help you take all the stress away!

Our team speaks 20+ different languages, including Mandarin, Cantonese, Hindi, Sinhalese, Korean and more.

Wed 24th Dec 11:00am ~ 11:30am

Sun 28th Dec 11:00am ~ 11:30am

Check out whether you can get fibre internet
Meet your new neighbours on Neighbourly