Ray White Flat Bush

Ray White provides a broad range of real estate services from selling your property to property management. Visit our website to see over 12,000 properties on display.

We are a family owned business. When you choose Ray White, you are choosing over 100 years of experience and a name you can trust. We guarantee it!

Contact us to find out how Ray White can help you when it comes to property.

Ray White Flat Bush
Mountfort Estate Agents Ltd Licensed (REAA 2008)

Real Estate Agents

Ray White Flat Bush
Ray White Flat Bush
Unit 25
123 Ormiston Road
Flat Bush
Auckland 2016
Listing #:
DMR31825
Listed:
13 days ago

By Negotiation

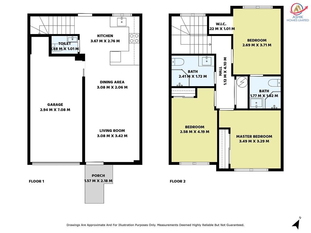
BRAND NEW AND AFFORDABLE !

26B Cape Road, Mangere, Manukau City
Residential House
bedroom
3 Bedrooms
bathroom
2 Bathrooms
carparkgarage
1 Car Garage
landarea
113m2 Land Area
About this property
Looking for a brand-new townhouse that offers modern style, everyday comfort, and exceptional value? These beautifully crafted homes at 26B Cape Road, Māngere are ready for you to move straight in - perfectly suited to families, professionals, and investors seeking quality and convenience.

With thoughtful design, quality finishes, and peace-of-mind warranties, these homes make day-to-day living effortless.

Key Features

3 Generous Bedrooms - Ideal for families, guests, or flatmates

2 Fully Tiled Bathrooms - Elegant, durable, and low-maintenance

Designer Kitchen - Contemporary fit-out with quality appliances

Open-Plan Living & Dining - Bright, inviting spaces, perfect for entertaining

Separate Guest Toilet

Internal Access Garage - Secure, practical, and weatherproof

Floor Area: 90-112m²

Land Area: 97-116m²

Prime Location

Perfectly positioned close to local shops, schools, parks, and public transport, these homes offer unmatched convenience in a fast-growing and well-connected neighbourhood.

A fantastic opportunity to secure a stylish, modern home in a thriving community.

Call now for more information - your new beginning awaits.
Check out whether you can get fibre internet
Meet your new neighbours on Neighbourly