Marlborough Commercial Limited

Marlborough Commercial are your local experts and we are proud to be Marlborough’s only full-time commercial and industrial sales and leasing team. With over 40 years of combined experience in the real estate sales and marketing industry, we have a consultancy-style business approach aimed at creating strong and rewarding relationships with our clients, potential purchasers, landlords and tenants alike.

Real Estate Agents

Marlborough Commercial Limited
Marlborough Commercial Limited
1 Hutcheson Street
Mayfield
Blenheim 7201
Listing #:
RX4734749
Listed:
21 hours ago

Negotiation

Your Business, Your Layout – Premier Omaka Site

Lot 51 Omaka Landing, Omaka, Marlborough
Commercial Land
floorarea
460m2 Floor Area
landarea
1,352m2 Land Area
About this property
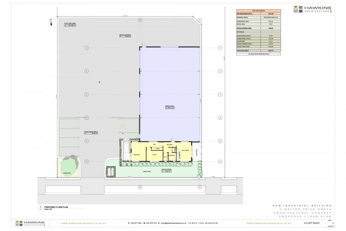
Be one of the first tenants in Blenheim's brand-new Omaka Business Park. This fully customisable design, lease and build opportunity is available now at Lot 51.

Our experienced development team has prepared a high-quality concept plan featuring a 379sqm (more or less) high-stud warehouse across four bays with three roller doors, an attached 80sqm (more or less) modern office and amenities block, a generous 664sqm (more or less) sealed yard and five dedicated on-site car parks (one accessible).

This layout is fully flexible – the warehouse footprint, office size, number of roller doors, yard configuration and overall design can be adjusted, enlarged or reduced to match your operational requirements.

Perfectly positioned on Blenheim's southwestern fringe with immediate access to SH6, SH1 and the airport corridor, this premium site is ideal for transport, logistics, light manufacturing, engineering or trade supply businesses seeking a purpose-built facility in Marlborough's newest industrial hub.

Final terms subject to agreed specification with occupation within 12–18 months of commitment.

Key features
• Fully customisable design and build – concept plan can be modified to suit
• Concept includes 379sqm (more or less) high-stud warehouse, 80sqm (more or less) office and 664sqm (more or less) yard
• Prime Omaka Business Park location with excellent arterial access and five on-site car parks

For lease - Dependant on specification, plus GST and Outgoings

For further information or to arrange an on-site meeting, contact exclusive agents Zak Thorpe or Grant Thorpe.
Check out whether you can get fibre internet
Meet your new neighbours on Neighbourly