Ray White Flat Bush

Ray White provides a broad range of real estate services from selling your property to property management. Visit our website to see over 12,000 properties on display.

We are a family owned business. When you choose Ray White, you are choosing over 100 years of experience and a name you can trust. We guarantee it!

Contact us to find out how Ray White can help you when it comes to property.

Ray White Flat Bush
Mountfort Estate Agents Ltd Licensed (REAA 2008)

Real Estate Agents

Ray White Flat Bush
Ray White Flat Bush
Unit 25
123 Ormiston Road
Flat Bush
Auckland 2016
Listing #:
DMR31785
Listed:
22 days ago

By Negotiation

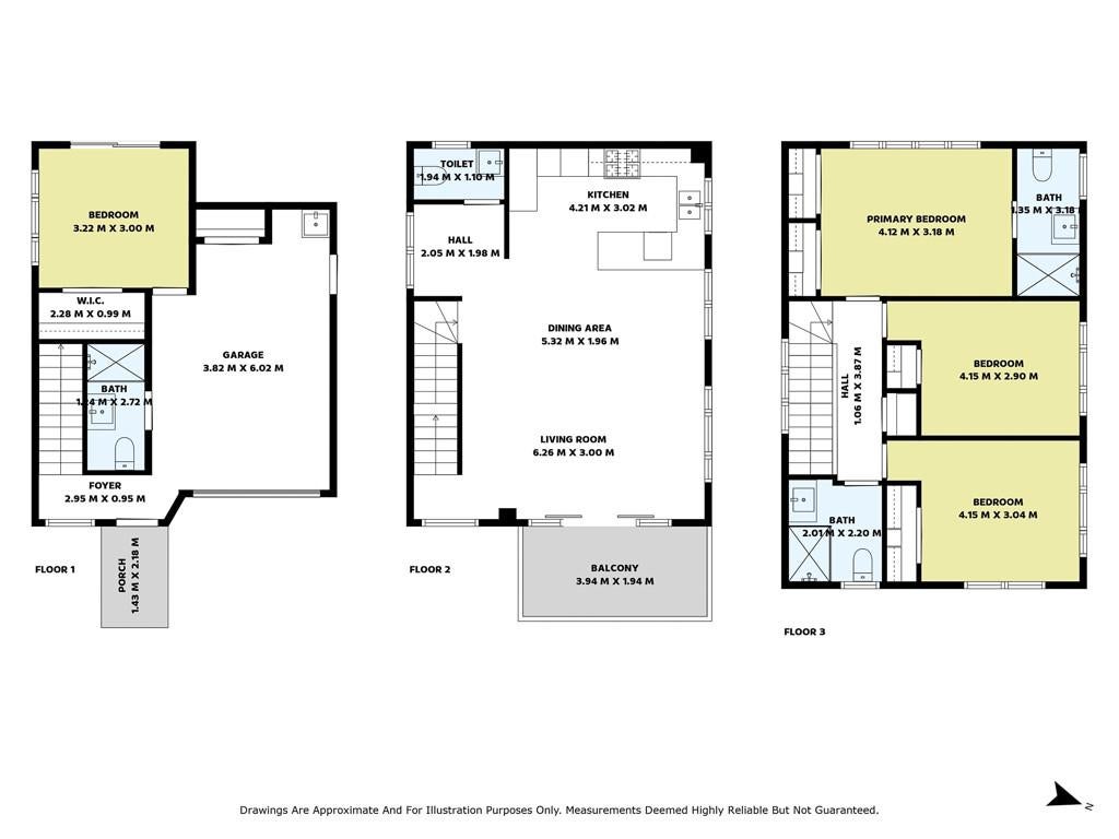
BRAND NEW - BEST LOCATION

25B Albion Road, Otahuhu, Auckland City
Residential House
bedroom
4 Bedrooms
bathroom
3 Bathrooms
carparkgarage
1 Car Garage
landarea
164m2 Land Area
About this property
Step into a new level of contemporary comfort - a perfect blend of smart design, everyday ease, and quality construction from top to bottom.

Ideal for families, busy professionals, or savvy investors, these newly built homes feature bright open spaces, refined finishes, and a stylish layout in a well-connected, family-oriented community.

Highlights:

Four well-proportioned bedrooms, including a master suite offering privacy and comfort

Three modern bathrooms plus an additional guest toilet for convenience

A beautifully appointed kitchen with granite benchtops, gas cooking, and premium appliances

Flexible living zones designed for relaxed family time as well as entertaining

Upgraded features throughout - LED lighting, digital door lock, intercom system, and security wiring

Tasteful details such as glass balustrades, soft carpeting, and heated towel rails

Internal-access garage, extra off-street parking, and easy-care landscaped outdoor areas

Peace of mind with a 10-Year Structural Warranty and a 1-Year Maintenance Warranty

Positioned in the heart of Otahuhu, you're only moments from schools, local shops, motorway links, and public transport - making everyday life wonderfully convenient.

These homes aren't just new builds - they've been crafted for real living: warm, stylish, practical, and ready for you to settle in and enjoy from day one.
Check out whether you can get fibre internet
Meet your new neighbours on Neighbourly