Ray White Wellington City

Ray White provides a broad range of real estate services from selling your property to property management. Visit our website to see over 12,000 properties on display.

We are a family owned business. When you choose Ray White, you are choosing over 100 years of experience and a name you can trust. We guarantee it!

Contact us to find out how Ray White can help you when it comes to property.

Real Estate Services, Real Estate Agents

Ray White Wellington City
Listing #:
JHV31583
Listed:
12 days ago

Deadline: Wednesday, 17th December at 3:00pm

Call Helston Home

1/236 Helston Road, Paparangi, Wellington
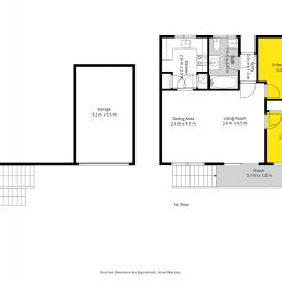
Residential House
bedroom
2 Bedrooms
bathroom
1 Bathroom
carparkgarage
1 Car Garage
floorarea
90m2 Floor Area
About this property
Low-maintenance living meets everyday convenience in this warm and inviting home.

Welcome to 1/236 Helston Road.

The bright open plan living and dining area provides a relaxed space to unwind while enjoying views of the suburb. The adjoining kitchen is practical and well laid out, making meal preparation easy whether you are cooking solo or entertaining friends.

Two generously sized bedrooms offer comfort and versatility perfect for rest. The bathroom features a shower over bath and an integrated laundry combining functionality with practicality. The garage has plenty of storage space for your everyday convenience.

Step outside to your private backyard, a sunny space full of potential for gardening, outdoor seating, or quiet moments at home. With low-maintenance grounds, you will spend less time on upkeep and more time enjoying what matters most.

The location is a standout. Just leave your car in the garage, step outside, catch the bus, and off you go to Wellington City for effortless commuting.

You are close to local shops, parks, schools, and Newlands shopping centre. Wellington CBD is an easy trip, offering suburban calm without sacrificing convenience.

Whether you are starting out, slowing down, or investing wisely, 1/236 Helston Road is a charming home ready for you.

Deadline of offers close 17 December 2025 Wednesday at 3PM.

View it. Love it. Make it yours.

Call Henrietta today to arrange your viewing.

HenCat of Ray White at your service.
Check out whether you can get fibre internet
Meet your new neighbours on Neighbourly