Ray White Wellington City

Ray White provides a broad range of real estate services from selling your property to property management. Visit our website to see over 12,000 properties on display.

We are a family owned business. When you choose Ray White, you are choosing over 100 years of experience and a name you can trust. We guarantee it!

Contact us to find out how Ray White can help you when it comes to property.

Real Estate Services, Real Estate Agents

Ray White Wellington City
Ray White Lower Hutt
9 -11 Kings Crescent
Listing #:
LWT33347
Listed:
15 days ago

Deadline 2:00pm, Thursday 11 December

Must Be Seen To Be Believed!

155A Katherine Mansfield Drive, Whitemans Valley, Upper Hutt
Residential House
bedroom
5 Bedrooms
bathroom
3 Bathrooms
carparkgarage
2 Car Garages
carparkcovered
1 Covered Car Park
carparkoffstreet
10 Offstreet Car Parks
About this property
Nestled amidst the splendour of Whitemans Valley, 155A Katherine Mansfield Drive presents an idyllic semi-rural lifestyle opportunity for families seeking space, comfort, and a deeper connection to the countryside. This property spans approximately 1.2633 hectares (more or less). It exemplifies the appeal of acreage living, offering the tranquillity of nature alongside the convenience of being just a short drive from Upper Hutt Central.

At the heart of the home is a spacious, open-plan kitchen and dining area, thoughtfully designed for modern family living and effortless entertaining. The contemporary kitchen invites culinary creativity, while the adjoining dining space, complete with a woodburner, flows seamlessly onto an expansive deck. This outdoor area is ideal for al fresco meals and gatherings, all set against a picturesque backdrop of rolling rural views.

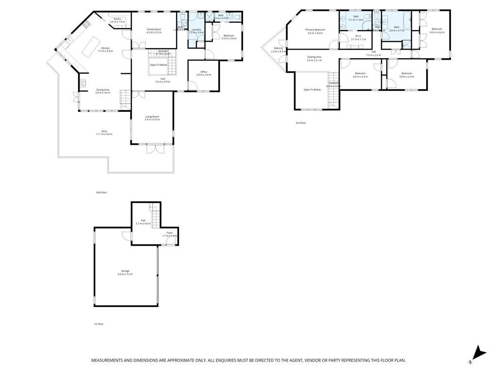
The home features five generously sized double bedrooms, including two with private en-suites. The master suite also includes a walk-in wardrobe and its own private deck, creating a peaceful retreat within the home. With a floor area of approximately 310 square metres (more or less), there is ample room for a study, two separate living areas, and plenty of space for both relaxation and family activities.

Beyond the main dwelling, the property offers exceptional practicality and versatility. A standout feature is the large shed with a high-stud carport, all under one roof. This impressive structure includes a wood shed, a workshop, his-and-her sheds, and a mezzanine floor for additional storage. A separate small cabin adds further flexibility, perfect as a quiet retreat, creative studio, or guest space.

Additional highlights include a greenhouse, a water filtration system, and three-phase power in the shed. The double internal access garage and high-stud carport provide ample parking, whether for a boat, campervan, or extra vehicles. This property is a rare find for those seeking a harmonious blend of rural charm and family functionality.

Embrace the dream of acreage living at 155A Katherine Mansfield Drive. This is more than a home-it is a lifestyle sanctuary where your family can thrive.

• Floor area: 310 sqm (more or less)
• Land area: 1.2633 ha (more or less)
• Five bedrooms, three bathrooms, two living rooms
• Double garage and off-street parking
• Large shed
• Rates: $5,300.93

Deadline Sale closing 2:00 pm, Thursday, 11 December 2025 (will not be sold prior)

Sun 7th Dec 1:00pm ~ 2:00pm

Check out whether you can get fibre internet
Meet your new neighbours on Neighbourly