LJ Hooker Southern Partners

Real Estate Agents

LJ Hooker Southern Partners
LJ Hooker Southern Partners
319 Great South Road
Papakura 2110
Listing #:
L37803569
Listed:
15 days ago

Asking Price $869,000

Act Now - Modern Home in Prime Location

4A Waitaua Street, Papakura, Papakura
Residential House
bedroom
4 Bedrooms
bathroom
2 Bathrooms
ensuite
1 Ensuite
carparkgarage
2 Car Garages
carparkoffstreet
2 Offstreet Car Parks
floorarea
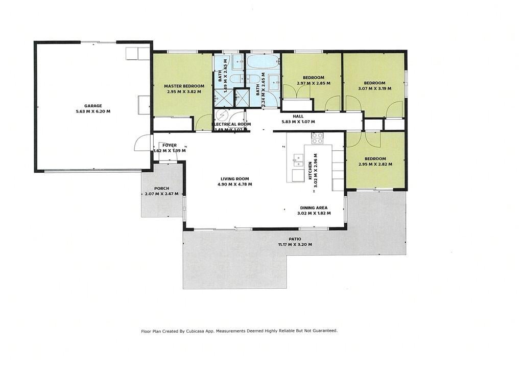
139m2 Floor Area
landarea
463m2 Land Area
About this property
Step inside this well-presented four-bedroom home, built in the 2010s and thoughtfully designed for everyday ease. Set on a generous 463m2 freehold section, the home welcomes you with a light-filled open-plan living and dining area, creating a central hub for family life. The modern kitchen is equipped with quality appliances, excellent storage, and plenty of bench space - ready for weeknight meals or weekend entertaining.

The master bedroom provides a peaceful retreat with its own ensuite, while three additional bedrooms offer flexibility for children, guests, or a dedicated work-from-home space. A double internal access garage completes the package, providing secure parking and additional storage. Outside, the private, low-maintenance yard is ideal for relaxed afternoons, pets, or hosting friends with ease.

FEATURES
• House Area : 139m2 (approx.)
• Land Area : 463m2 (approx.)
• Four bedrooms, including master with ensuite
• Double internal access garage
• Light-filled open-plan living and dining
• Modern kitchen with quality appliances and ample storage
• Low-maintenance, private outdoor area

LOCATION
Leave the car at home - this property sits within easy walking distance to town amenities, including shops, cafes, transport options, and quality schooling. Everything you need is right at your doorstep.

OPPORTUNITY
With its modern layout, convenient location, and easy-care section, this home represents excellent value in today's market. Whether you're upsizing, investing, or simply seeking a fresh start, this property deserves your attention.

Contact Graham on 027 564 2700 today to arrange a viewing or receive further information.

Sat 13th Dec 12:00pm ~ 1:00pm

Check out whether you can get fibre internet
Meet your new neighbours on Neighbourly