Ray White Beach Haven

Ray White provides a broad range of real estate services from selling your property to property management. Visit our website to see over 12,000 properties on display.

We are a family owned business. When you choose Ray White, you are choosing over 100 years of experience and a name you can trust. We guarantee it!

Contact us to find out how Ray White can help you when it comes to property.

Ray White Beach Haven
Carpenter Realty Ltd Licensed (REAA 2008)

Real Estate Agents

Ray White Beach Haven
Ray White Beach Haven
350 Rangatira Road
Beach Haven
Auckland 0626
Listing #:
GLF32013
Listed:
15 days ago

Auction

Wed 10th Dec 4:00pm

Stylish End Unit + Double Garage - LAST WEEKEND!

22/193 Eskdale Road, Birkenhead, North Shore City
Residential House
bedroom
3 Bedrooms
bathroom
1 Bathroom
toilet
1 Toilet
carparkgarage
2 Car Garages
floorarea
100m2 Floor Area
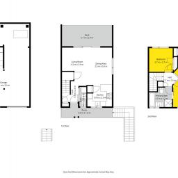
About this property
Enjoy all-day sunshine and a lush, leafy outlook from this desirable end-unit. Lovingly maintained by the same owners for over 22 years, it's a home that's been genuinely cared for, and it shows.

Tucked at the end of a quiet driveway, this stylish three-bedroom townhouse offers the ideal blend of comfort, convenience, and value in one of Birkenhead's most sought-after pockets - and it must be sold!

The light-filled open-plan living flows to a north-facing deck and fully fenced garden - just the right amount of outdoor space for those who love greenery without the maintenance. Beyond the rear gate, you'll find an additional 190sqm of shared green space to enjoy.

A modern kitchen, separate laundry, and guest bathroom complete the ground floor, while upstairs features three generous bedrooms and a contemporary bathroom. Secure double garaging, with a generous amount of storage, plus guest parking, adds everyday practicality.

Just a short walk to Birkenhead Village cafés, schools, and the Onewa Road busway, this home delivers unbeatable value for location, lifestyle, and long-term liveability.

Highlights:

• 3 Bedrooms | 1.5 Bathrooms
• Secure double garage + guest parking
• North-facing deck & fenced garden (approx. 50sqm)
• Shared 190sqm lawn space maintained by Bodycorp
• Body Corporate Fees approx. $2,567 incl. insurance
• Pre-Sale Building Inspection, upon request

The perfect blend of comfort, privacy, and convenience. Don't wait - this one will be sold!

Auction: 4:00pm, Wednesday 10th December 2025, In Rooms, Ray White Glenfield, Glenfield Mall (unless sold prior).
You can watch the auction live here rwcarpenterrealty.co.nz...

Sat 6th Dec 11:00am ~ 11:30am

Sun 7th Dec 11:00am ~ 11:30am

Check out whether you can get fibre internet
Meet your new neighbours on Neighbourly