Ray White Mangere Bridge
20B Coronation Road
Mangere Bridge
Auckland 2022
Ray White Manukau
603 Great South Road
Manukau City Centre
Auckland 2104
Listing #:
MKU42058
Listed:
17 days ago

Set Date of Sale (unless sold prior)

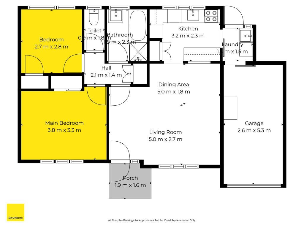
Brick & Tile Starter with Yard Space

23 Avalon Court, Otahuhu, Auckland City
Residential House
bedroom
2 Bedrooms
bathroom
1 Bathroom
carparkgarage
1 Car Garage
floorarea
110m2 Floor Area
About this property
If you're looking for value, convenience, and low-maintenance living, this tidy brick-and-tile home in Otahuhu is the one to act on. Set in a safe, quiet complex and minutes from the motorway, Middlemore, town centre, Sylvia Park, and Gurdwara Sahib temple - the location does all the work for you.

Inside, the home is warm, clean, and easy to maintain. Two good-sized bedrooms, open-plan living, an internal-access garage, and a heat pump make everyday life simple. It's also fully Healthy Homes compliant, ticking the boxes for both homeowners and investors.

The private, fully fenced backyard is a real bonus - ideal for kids, pets, BBQs, or relaxed weekend living. Add off-street parking, and you've got a smart, practical package that's ready to move into or rent out immediately.

With the owner already moved on, this is a straightforward, no-fuss opportunity worth jumping on.

Key Features:
• Brick & tile, low-maintenance home
• 2 bedrooms + internal-access garage
• Private, fully fenced backyard
• Heat pump + Healthy Homes compliant
• Safe, quiet complex
• Off-street parking
• Minutes to motorway, shops & Middlemore

Call Aramiha Nathan on 021 574 270 or Gin T 021 111 7771 today to view.

CONJUNCTIONS WELCOME BY ALL AGENCIES

Set Date of Sale (unless sold prior) 08/12/2025 @ 2.30 pm, 603 Great South Road , Manukau

Disclaimer - This property is being sold by a set date of sale and therefore, a price guide can not be provided. The website may have filtered the property into a price bracket for website functionality purposes. All prospective purchasers shall complete their own due diligence, seek legal and expert advice, and satisfy themselves with respect to information supplied during the marketing of this property, including but not limited to: the floor and land sizes, boundary lines, underground services, along with any scheme plans or consents.
Check out whether you can get fibre internet
Meet your new neighbours on Neighbourly