Ray White Botany

Ray White provides a broad range of real estate services from selling your property to property management. Visit our website to see over 12,000 properties on display.

We are a family owned business. When you choose Ray White, you are choosing over 100 years of experience and a name you can trust. We guarantee it!

Contact us to find out how Ray White can help you when it comes to property.

Ray White Botany
Mountfort Estate Agents Ltd Licensed (REAA 2008)

Real Estate Agents

Ray White Botany
Ray White Botany
20 Crescent Lane
East Tamaki
Auckland 2013
Listing #:
BOT31358
Listed:
37 days ago

By Negotiation

Modern & Stylish Freehold Corner-Site Living

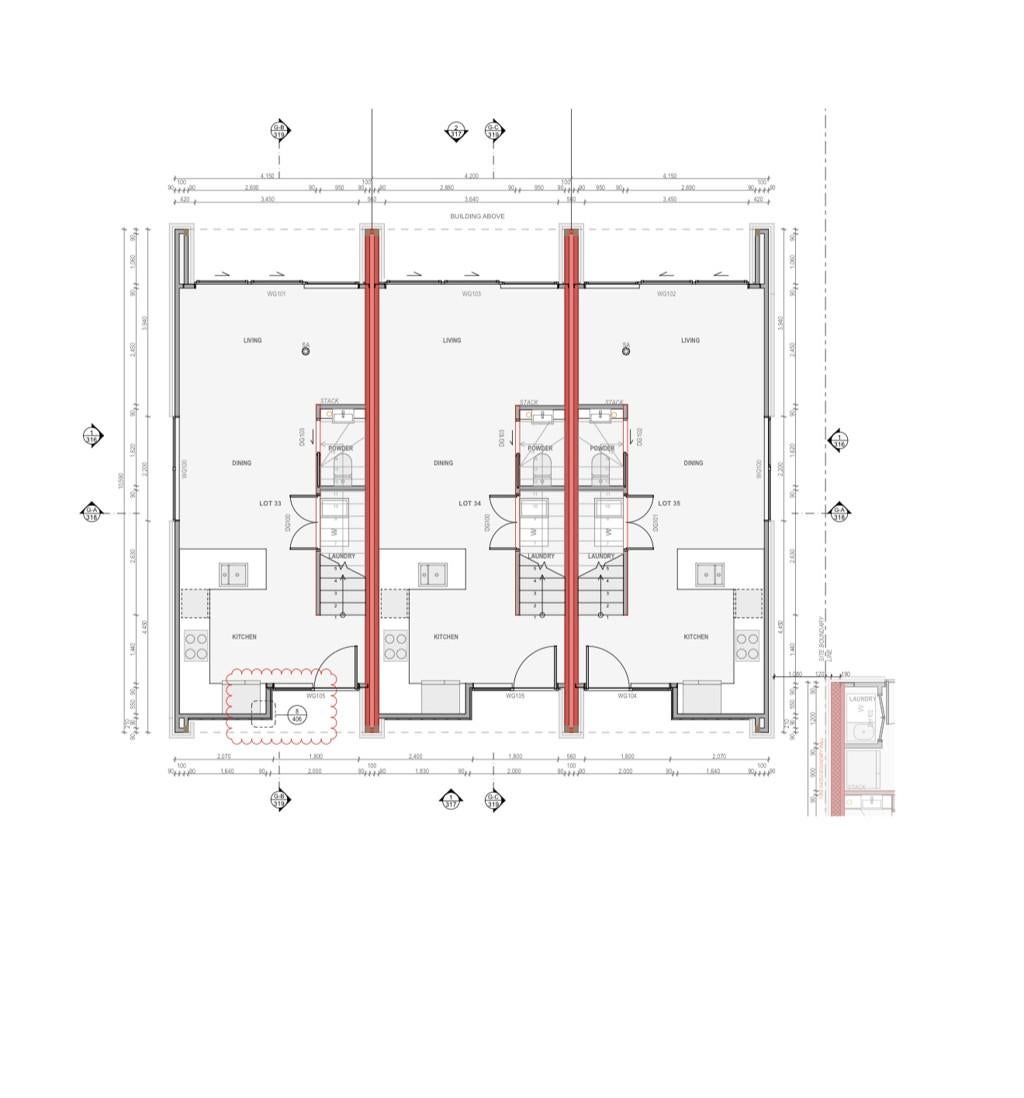
Lot 33/239 Flat Bush School Road, Flat Bush, Manukau City
Residential House
bedroom
3 Bedrooms
bathroom
1 Bathroom
carparkoffstreet
1 Offstreet Car Park
About this property
Freehold Terrace Home | 3 Bedrooms | 1.5 Bathrooms | 1 Parking Space

What Makes This Home Truly Exceptional?

*2025 NZ Commercial Project Award - Gold Winner
*High-spec fittings and designer finishes throughout
*10-Year Stamford Building Warranty for peace of mind
*Modern Design. Elevated Living.

Discover this beautiful freehold terrace home, offered at an attractive and affordable price. Why rent when you can own? With completion scheduled by the end of the year, now is the perfect time to inspect and secure the one that suits you best.

The ground floor boasts a bright, open-plan living and dining area seamlessly connected to a contemporary kitchen-perfect for everyday family life and entertaining guests. A guest toilet and separate laundry add convenience and practicality.

Upstairs, you'll find 2 generous double bedrooms, a single bedroom, and a modern family bathroom, providing ample space for family living. Plus, enjoy the convenience of your own allocated car park right beside the home.

Location is everything! Situated in the rapidly growing Flat Bush community, you'll be close to local reserves, parks, top schools, shopping centres, and a wide range of amenities-all within easy reach.

This is an opportunity not to be missed. Contact Kim on 022 060 8089 today to secure this exceptional property.
Check out whether you can get fibre internet
Meet your new neighbours on Neighbourly