Ray White St Heliers

Ray White provides a broad range of real estate services from selling your property to property management. Visit our website to see over 12,000 properties on display.

We are a family owned business. When you choose Ray White, you are choosing over 100 years of experience and a name you can trust. We guarantee it!

Contact us to find out how Ray White can help you when it comes to property.

Real Estate Agents

Ray White St Heliers
Ray White St Heliers
10 Polygon Road
St Heliers
Auckland 1071
Listing #:
STH31872
Listed:
18 days ago

Auction (unless sold prior)

Wed 10th Dec 5:00pm

Sunlit, Flexible, Bays Border Delight!

45E Apirana Avenue, Glen Innes, Auckland City
Residential House
bedroom
4 Bedrooms
bathroom
2 Bathrooms
toilet
1 Toilet
carparkgarage
1 Car Garage
carparkoffstreet
1 Offstreet Car Park
floorarea
164m2 Floor Area
landarea
285m2 Land Area
About this property
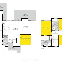
Stylish, practical, and designed for modern living - this freestanding weatherboard and brick home, completed in 2014, offers 164sqm of well-planned living on a 285sqm freehold site. It's a perfect match for busy families, professionals, or anyone looking for low-maintenance comfort in a location that keeps life easy.

The entry level features an open-plan kitchen, dining, and living area, filled with natural light and flowing seamlessly onto a north-facing patio and garden - perfect for morning coffee, weekend entertaining, or relaxing in the sun. The kitchen is equipped with stainless steel appliances, a breakfast bar, and a pantry, combining practicality with style. A separate laundry and guest toilet add convenience.

Tucked just off this space is a versatile room that can be whatever you need it to be - a fourth bedroom, home office, or relaxed second living area. It's flexibility that grows with you. Upstairs you'll find three double bedrooms, including a light-filled master suite with walk-in wardrobe and ensuite. The family bathroom is generous, with both a bath and separate shower.

Set back from the road in a private enclave of homes, you'll enjoy peace and privacy, plus spacious internal-access garaging and a second off-street park in front of the garage. Additional features include a security alarm, double glazing, fully insulated walls and ceilings, and a fully fenced rear garden ensuring comfort, efficiency, and peace of mind year-round.

Positioned in trendy northern Glen Innes, just a short walk to trains (only three stops to Britomart), buses, PaknSave, Chemist Warehouse, and local cafes, this home connects you easily to everything you need. And when it's time to unwind, the beautiful Eastern Bays beaches are only minutes away.

Don't delay, view today and secure this fabulous home before Christmas!

Sun 7th Dec 2:00pm ~ 2:30pm

Check out whether you can get fibre internet
Meet your new neighbours on Neighbourly