Lugtons Real Estate - Central Hamilton
1010 Victoria Street
Whitiora
Hamilton 3200
Lugtons Real Estate - River Road
Cnr of River Road & Donny Avenue
Listing #:
RD22541
Listed:
18 days ago

$629,000

Easy Living By The Lake

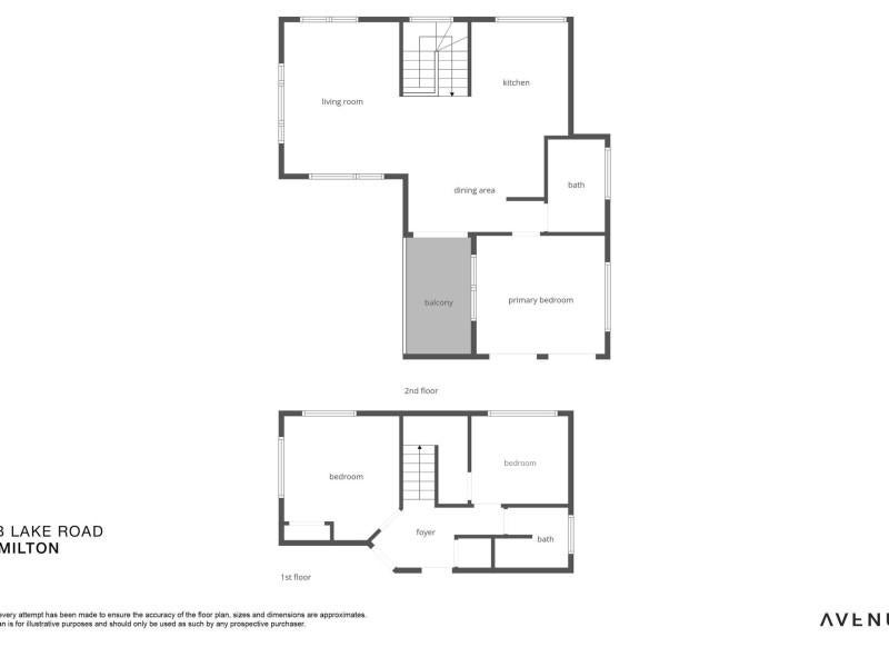
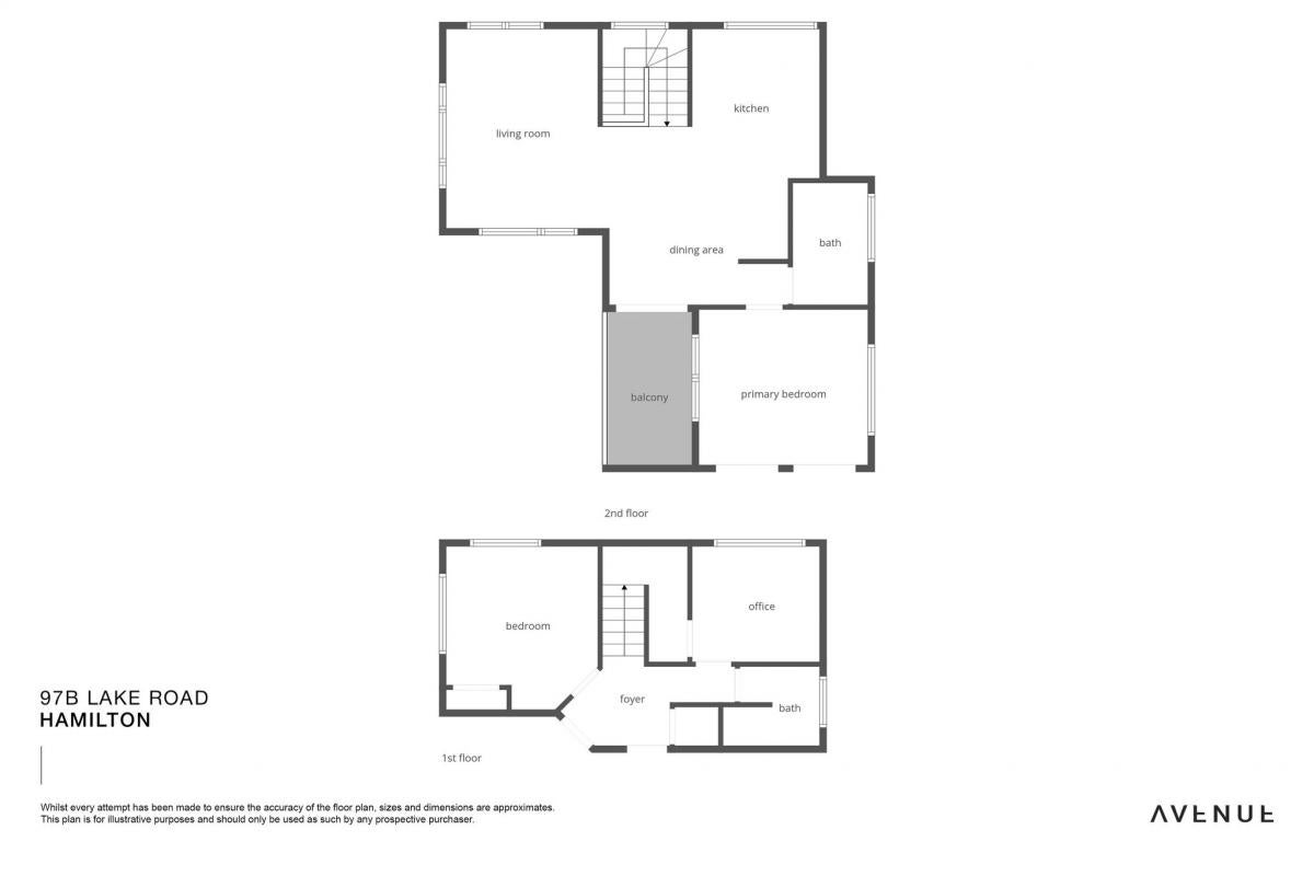
97B Lake Road, Frankton, Hamilton
Townhouse
bedroom
3 Bedrooms
bathroom
2 Bathrooms
carparkgarage
2 Car Garages
About this property
Tucked quietly off the road and offering exceptional privacy, 97B Lake Road delivers convenience, comfort, and a layout that works beautifully for a range of lifestyles. Just a short stroll from Hamilton Lake and the CBD, this is city living made effortless.

Set across two levels, the home is thoughtfully designed to give everyone their own space. Downstairs, you’ll find two generous bedrooms accompanied by a well-appointed bathroom — an ideal setup for teens, guests, or extended family. This level opens to a private outdoor courtyard, a sheltered spot perfect for a spa, morning sun, or unwinding at the end of the day.

Upstairs is the heart of the home, where light-filled open-plan living connects the kitchen, dining, and lounge. Large windows capture elevated views, while the adjoining balcony provides an inviting space for a quiet coffee or fresh air. The kitchen offers excellent storage and bench space, keeping everyday living practical and easy.

The master bedroom is also on this level, giving you a peaceful retreat with great storage and an ensuite for added comfort.

A double garage, secure gated entry, and low-maintenance grounds complete the picture, offering lock-up-and-leave convenience in a sought-after central location.

With Hamilton Lake walks, cafés, hospital, and the CBD all within walking distance, this is a home that blends privacy with unbeatable accessibility. Move in and enjoy the ease of central living. Contact Paula today for more information

Sun 7th Dec 1:00pm ~ 1:30pm

Check out whether you can get fibre internet
Meet your new neighbours on Neighbourly