LJ Hooker Dunedin

LJ Hooker features one of the largest residential and commercial sales and property management networks in the industry with more than 8,000 sales professionals, property managers and support team members.

LJ Hooker also provides a full suite of commercial services across Australia and New Zealand including buying, selling and leasing real estate for commercial or investment purposes. 

For more information visit ljhooker.co.nz

Real Estate Agents

LJ Hooker Dunedin
LJ Hooker Dunedin
63 Musselburgh Rise
Musselburgh
Dunedin 9013
Listing #:
RX4788634
Listed:
22 days ago

Negotiation

Your Vision, Your Home, Your Future in Concord

69 Mulford Street, Concord, Otago
Residential House
bedroom
3 Bedrooms
bathroom
1 Bathroom
carparkgarage
1 Car Garage
landarea
711m2 Land Area
About this property
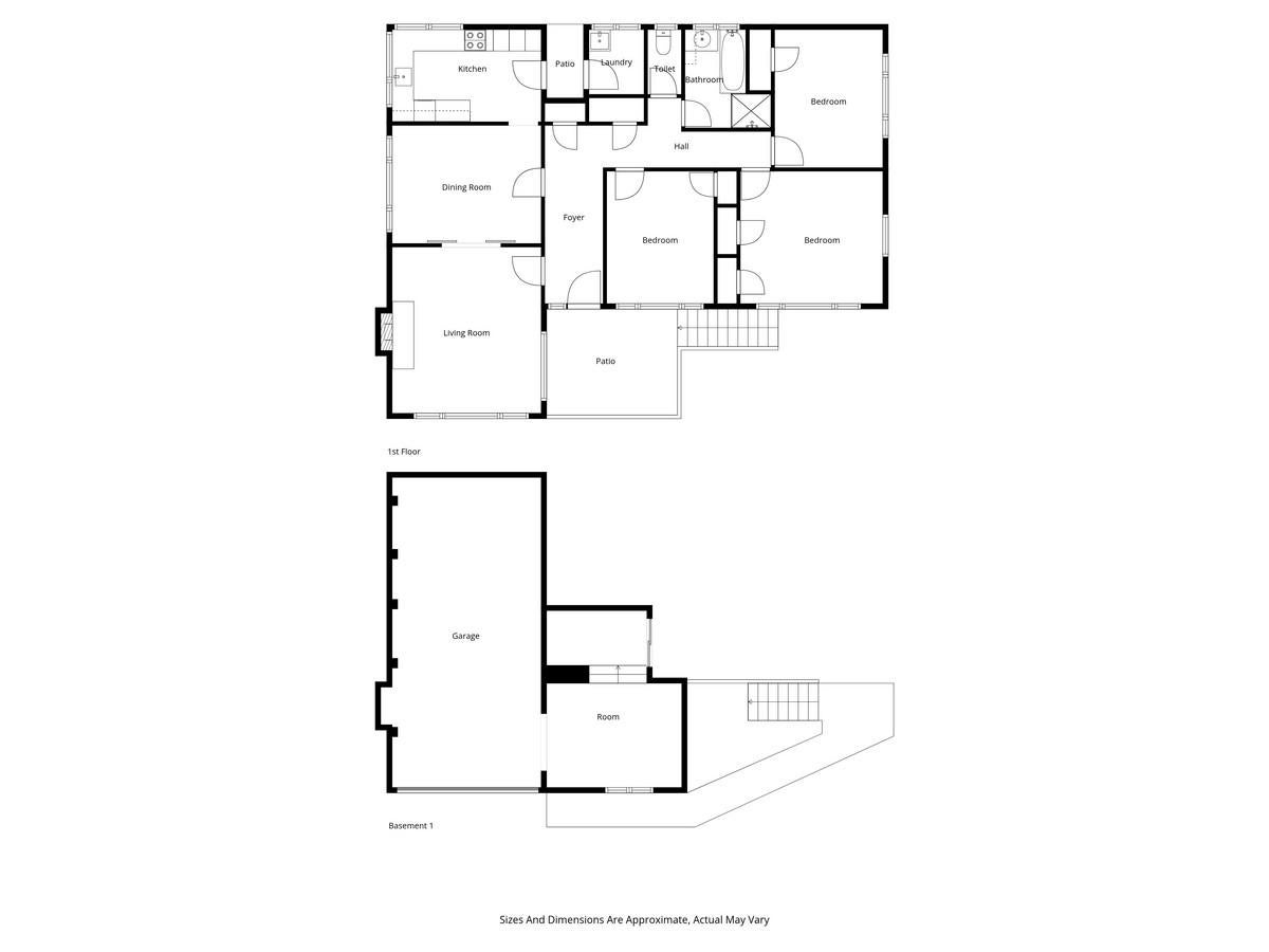
Set on an elevated site, this original 1965 brick home captures all-day sun, with lovely open views and a peaceful rural backdrop.
Solidly built and generously proportioned at approximately 180 square metres, the home offers three bedrooms, spacious living areas, and all the character and charm of its era, providing the perfect canvas for renovators, investors, or first-home buyers ready to make their mark.
Beautifully maintained over the decades, this home offers outstanding potential to add value and create your dream home in one of Concord's most popular streets, a true opportunity not to be missed.
Being an estate sale, our instructions are clear, this property must be sold.

Don't miss your chance to secure this original Concord gem.
Check out whether you can get fibre internet
Meet your new neighbours on Neighbourly