Raine & Horne-Rotorua

Real Estate Agents

Raine & Horne-Rotorua
Listing #:
L37568015
Listed:
45 days ago

Price on Application

Finish the development or start your own

30 Morey Street, Owhata, Rotorua
Other
landarea
932m2 Land Area
About this property
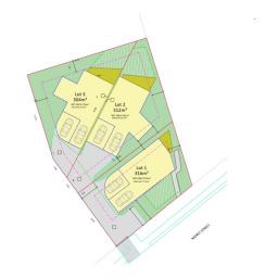
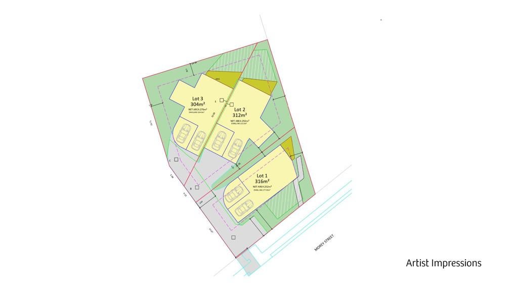
30 Morey Street was earmarked for some amazing "TOA" designed homes which you can see in the renders in the photos. The concept is potentially still alive for any buyer who wants to carry on with these current designs or come up with their own.

The current resource consent has been approved for three household units with land use consent to subdivide the section into three lots. This expires 5 years from date of issue being 1st June 2022.

What you are physically buying is bare land. Architecturally designed fences are on site.

Please contact Ant for more information on this land, consent and designs.

Please be aware that this information has been sourced from third parties. View our property information disclaimer here: raineandhorne.co.nz/property-disclaimer
Check out whether you can get fibre internet
Meet your new neighbours on Neighbourly