Ray White Remuera

Ray White provides a broad range of real estate services from selling your property to property management. Visit our website to see over 12,000 properties on display.

We are a family owned business. When you choose Ray White, you are choosing over 100 years of experience and a name you can trust. We guarantee it!

Contact us to find out how Ray White can help you when it comes to property.

Ray White Remuera
Megan Jaffe Real Estate Ltd Licensed (REAA 2008)

Real Estate Agents

Ray White Remuera
Ray White Remuera
411 Remuera Road
Remuera
Auckland 1050
Listing #:
RMU44287
Listed:
24 days ago

Asking Price $1,495,000

Stylish Freehold Townhouse in Remuera

11/35 Mainston Road, Remuera, Auckland City
Residential House
bedroom
3 Bedrooms
bathroom
2 Bathrooms
carparkoffstreet
1 Offstreet Car Park
floorarea
103m2 Floor Area
landarea
171m2 Land Area
About this property
Experience modern living with this 2-year new freehold terraced townhouse in the heart of Remuera. Designed with clean lines, low-maintenance exteriors, and luxurious interiors, this home offers a seamless blend of form and function complete with double glazing.

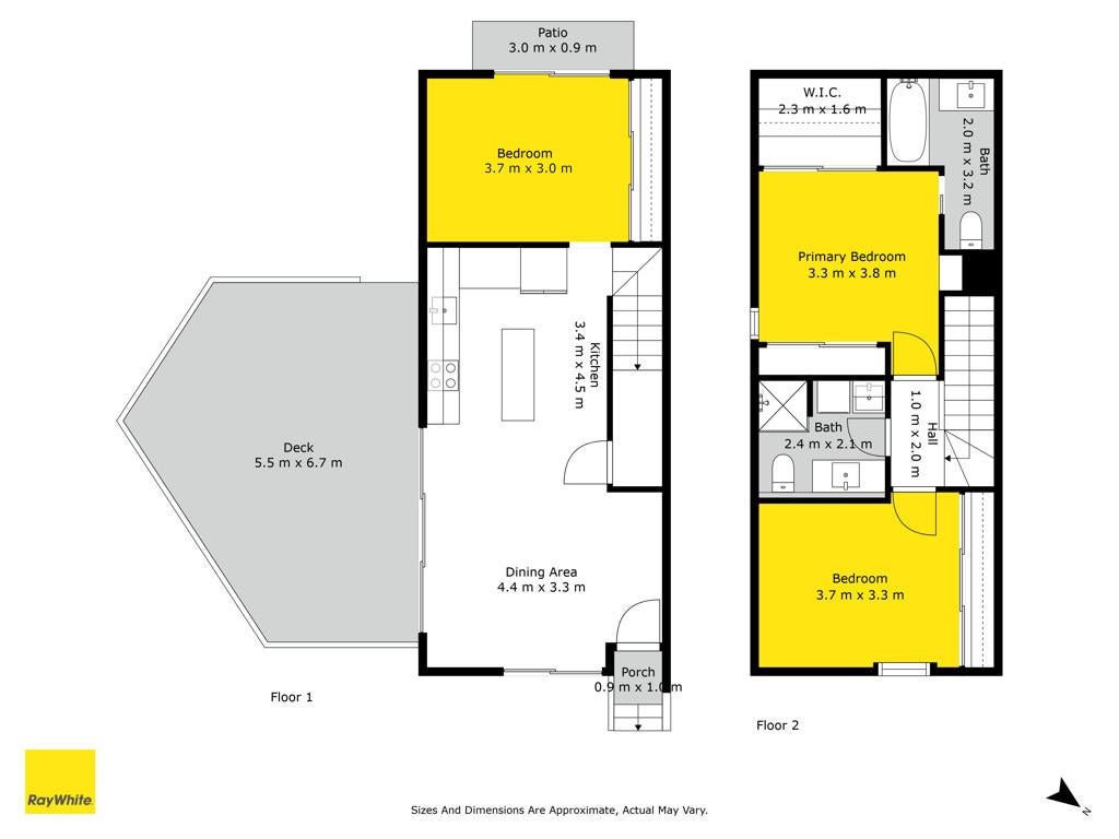
Cleverly designed, the 103sqm (approx.) floor plan is ideal for family life, featuring 3 spacious double bedrooms - one down and two upstairs - 2 beautifully appointed bathrooms (one which includes a freestanding bath), and an open-plan living area that opens through to spacious decking and immaculately landscaped fully fenced outdoor area - ideal for children and pets.

On the first floor, European oak timber floors flow throughout the open-plan living space, where natural light pours in, enhancing the contemporary design. The designer kitchen boasts high-end Bosch appliances, sleek cabinetry, and durable Dekton stone countertops, perfect for both everyday meals and entertaining. The bedroom on this level is currently used as a second living area and could easily serve as a home office, also opens to an outdoor garden.

Upstairs, you'll find two generously sized bedrooms, including a master suite with a modern ensuite and a large family bathroom. The home's finishes throughout are of the highest quality-polished floors, ducted heat pumps (on both levels), and beautifully tiled bathrooms with underfloor heating elevate this property to the next level.

Conveniently located just minutes from Upland Road shops and Remuera Village, enjoy your daily coffee at a local café and easy access to public transport, major roads, and the CBD. Zoned for excellent schools, including Selwyn College and Remuera Primary and Intermediate, with private schools like Kings School, St Kentigern Girls' School, and Baradene College nearby.

Don't miss out on the rare opportunity to own a stylish, low-maintenance home in one of Auckland's most sought-after suburbs at an affordable price.

For Agents: We happily collaborate with every agency so if you have buyers to who this property may be of interest please call Ferne 021652139 to discuss

Sun 7th Dec 11:00am ~ 11:30am

Sun 14th Dec 11:00am ~ 11:30am

Check out whether you can get fibre internet
Meet your new neighbours on Neighbourly