Ray White Pukekohe

Ray White provides a broad range of real estate services from selling your property to property management. Visit our website to see over 12,000 properties on display.

We are a family owned business. When you choose Ray White, you are choosing over 100 years of experience and a name you can trust. We guarantee it!

Contact us to find out how Ray White can help you when it comes to property.

Ray White Pukekohe
Southern Corridor Realty Ltd Licensed (REAA 2008)

Real Estate Agents

Ray White Pukekohe
Ray White Pukekohe
4 Hall Street
Pukekohe
Auckland 2120
Listing #:
PUK32309
Listed:
54 days ago

Price by Negotiation

Luxury Living in Paerata's Newest Development

2C Paul Sotutu Road, Paerata, Franklin
Residential House
bedroom
4 Bedrooms
bathroom
2 Bathrooms
carparkgarage
2 Car Garages
landarea
420m2 Land Area
About this property
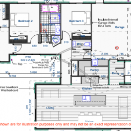
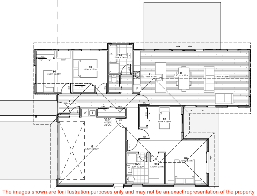
Build your next home in Paerata Rise with Kanda Homes

Kanda Homes offers a range of House & Land and Turn Key Home options designed to fit your lifestyle and stage of life. Whether you're a first home buyer, growing family, downsizing or investor, you'll love the ease and value of owning brand new in one of South Auckland's most desirable communities.

Located in the thriving Paerata Rise development, your new home will be close to local amenities including schools, public transport, playgrounds, and more. Plus, the Drury motorway on ramp is only 9km away, making it an ideal location for those commuting to Auckland or Hamilton.

We've uploaded a few photos and plans to spark ideas, but every Kanda Home is custom designed and built to suit you. Choose from spacious 3, 4, or 5-bedroom layouts with open plan living and two bathrooms, perfect for relaxing or entertaining.

Quality features come standard:

Brick & Weatherboard cladding

ColourSteel roofing

Modern kitchen by KitchenTech

Belgotex carpet

Bosch appliances

Heat pump

Want to personalise your new home? Every feature can be upgraded or changed to suit your taste and budget.

If financing a new build feels tricky, we can help. Our Turn Key options make it easier for buyers who need the home to be completed before the bank releases funds.

Don't miss your chance to join the Paerata Rise community, where thoughtful design, convenience, and quality living come together.

Contact Brad Smith today on 021 243 7438 to view plans, discuss pricing, and start your next property journey with Kanda Homes.
Check out whether you can get fibre internet
Meet your new neighbours on Neighbourly