Ray White Flat Bush

Ray White provides a broad range of real estate services from selling your property to property management. Visit our website to see over 12,000 properties on display.

We are a family owned business. When you choose Ray White, you are choosing over 100 years of experience and a name you can trust. We guarantee it!

Contact us to find out how Ray White can help you when it comes to property.

Ray White Flat Bush
Mountfort Estate Agents Ltd Licensed (REAA 2008)

Real Estate Agents

Ray White Flat Bush
Ray White Flat Bush
Unit 25
123 Ormiston Road
Flat Bush
Auckland 2016
Listing #:
DMR31716
Listed:
55 days ago

By Negotiation

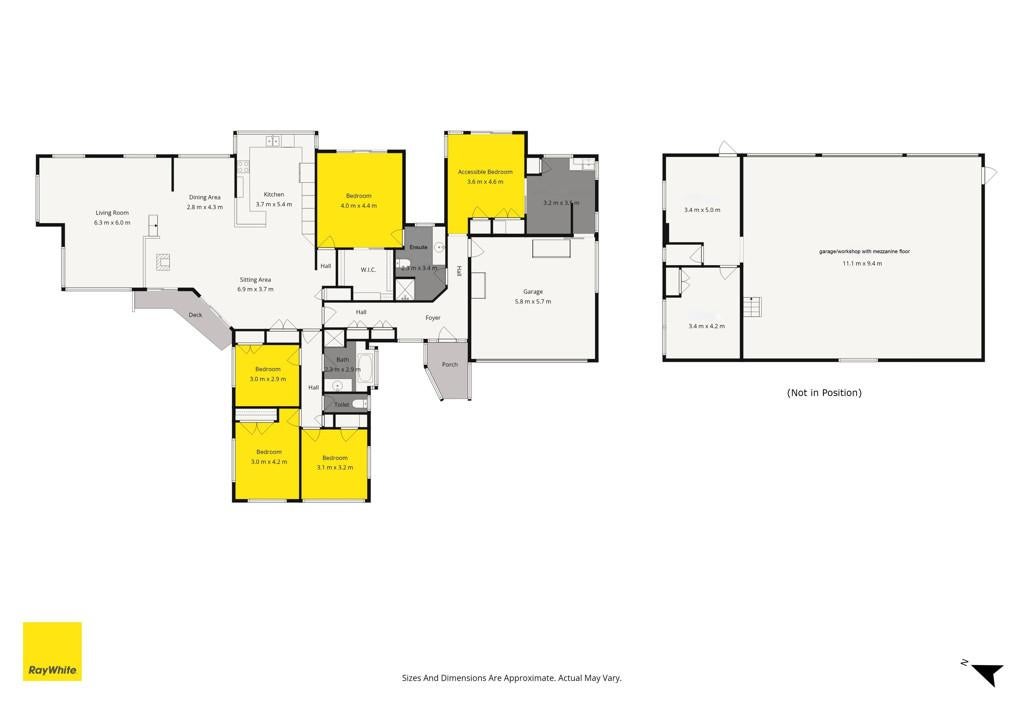
1 Ha Prime Residential Land

33 Normanby Road, Karaka, Franklin
Other
bedroom
5 Bedrooms
bathroom
2 Bathrooms
carparkgarage
2 Car Garages
landarea
1.0 Hectares Land Area
About this property
• 1.0576 hectares more or less almost flat land

• Residentially Zoned as Mixed Housing Suburban, Hingaia 3 Precinct

• Neighbours already lodged Resource Consent Application for Subdivisions

• Prime elevated land with regular shape and good road frontage

• Lifestyle property with full accessibility for wheelchair -fully ramped, wide doorways, walk in shower

• Close proximity to Hingaia Peninsula Primary School and ACG Strathallan Private School, shops and Motorway
Check out whether you can get fibre internet
Meet your new neighbours on Neighbourly