Lugtons Real Estate - Central Hamilton
1010 Victoria Street
Whitiora
Hamilton 3200
Lugtons Real Estate - River Road
Cnr of River Road & Donny Avenue
Listing #:
RD22434
Listed:
38 days ago

$529,000

Divorce equals Opportunity

110/11 Rawhiti Street, Frankton, Hamilton
Apartment
bedroom
2 Bedrooms
bathroom
2 Bathrooms
floorarea
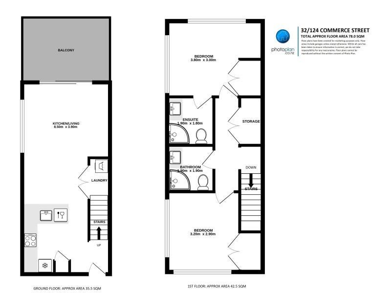
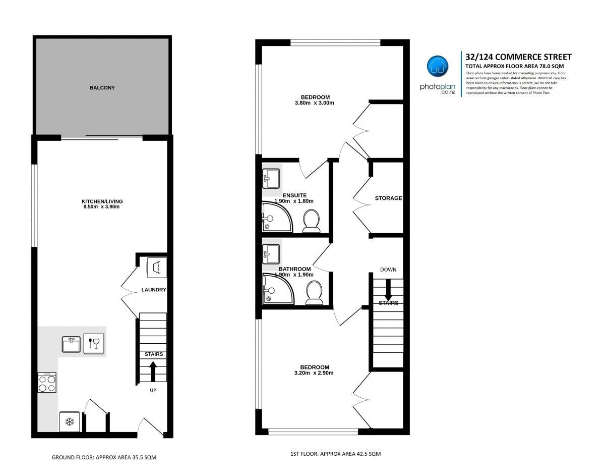
78m2 Floor Area
About this property
Tucked away in the quietest corner of Rawhiti Village, this two-bedroom, two-bathroom apartment stands out for all the right reasons. Welcome to the pick of the bunch at Rawhiti Village.

Positioned at the very end of the smallest building in the development – with only one adjoining neighbour – this apartment enjoys a rare sense of privacy and calm. Thoughtfully customised by the current owners, the floor plan was flipped during construction to maximise sunlight, and extra windows were added to flood the home with natural light thus creating an airy, uplifting atmosphere that’s unique to this apartment alone.

Inside, the layout is smart and functional. The open-plan living and kitchen area flows effortlessly to a private balcony — the perfect spot to unwind at the end of the day. Both bedrooms are generously sized, with the master suite enjoying its own ensuite.
Practicality hasn’t been overlooked either, with your own designated carpark located securely behind gates at the rear of the building – giving you peace of mind and easy access.

Built to modern standards, this near-new apartment means easy living with minimal maintenance — ideal for busy professionals, downsizers, or those looking for a lock-up-and-leave lifestyle close to the action. Alternatively it is just as perfect for an AirBnb operation. This comes with its own designated carpark located inside the security gates, offering peace of mind.
You’re just moments from the CBD, Rugby Park, Seddon Park, the iconic Good George Brewery, and Hamilton Lake – everything you love about city living, without the noise and bustle.

This sale comes around due to a change in circumstances for the vendors and offers the best of village living with a light-filled, private twist that sets it apart from the rest.
Check out whether you can get fibre internet
Meet your new neighbours on Neighbourly