Ray White Beach Haven

Ray White provides a broad range of real estate services from selling your property to property management. Visit our website to see over 12,000 properties on display.

We are a family owned business. When you choose Ray White, you are choosing over 100 years of experience and a name you can trust. We guarantee it!

Contact us to find out how Ray White can help you when it comes to property.

Ray White Beach Haven
Carpenter Realty Ltd Licensed (REAA 2008)

Real Estate Agents

Ray White Beach Haven
Ray White Beach Haven
350 Rangatira Road
Beach Haven
Auckland 0626
Listing #:
GLF31984
Listed:
59 days ago

Asking Price $1,455,000

Multi-gen or growing families, this one's for you!

56 Fruitlands Road, Kumeu, Rodney
Residential House
bedroom
4 Bedrooms
bathroom
3 Bathrooms
carparkgarage
2 Car Garages
carparkoffstreet
2 Offstreet Car Parks
floorarea
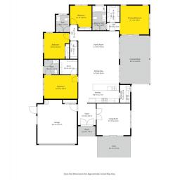
228m2 Floor Area
landarea
662m2 Land Area
About this property
Perfectly positioned on one of Kumeu's most sought-after streets, welcome to 56 Fruitlands Road, Kumeu.

With high-stud ceilings, natural light, and a clever floorplan with premium finishes that define each space, this is a home you may never want to leave!

Boasting four bedrooms including two master suites (both with their own ensuites and walk-in wardrobes), three bathrooms and two living areas and double internal access parking, all spread over an expansive 228sqm (approx) floorplan. This stunning home provides an ideal setup for growing or multi-generational families, or those who host guests or extended family wanting a little more space for everyone.

The designer kitchen makes everyday life easy and entertaining effortless, with sleek finishes, and a scullery with second hob, sink and storage for added convenience. Underfloor heating in every bathroom adds a touch of everyday luxury, a real treat for the feet on crisp winter mornings.

With two separate living areas, the home offers both togetherness and retreat. The main living room is at the heart of the home, open and airy with seamless flow to the kitchen and outdoor entertaining area. The second living space provides flexibility for a media room, kids' zone, or quiet escape, whatever best fits your lifestyle.

Open the doors to your covered outdoor area, perfect for year-round gatherings. Whether it's sunny brunches, BBQs with friends or cosy family dinners, this space adapts to the season with retractable walls creating a third living zone when needed.

Kids and pets will love the expansive backyard, ideal for playing, a trampoline or an on-ground pool for summer. There's even an extra gate on the front fence providing access for a boat, trailer or caravan - a rare bonus in subdivision living.

Set within a welcoming, family-friendly community, Fruitlands Road is known for its festive charm and neighbourly spirit. From Halloween celebrations to Christmas lights, there's a wonderful sense of connection that makes this area feel special. Just moments from Kumeu Village, local shops, eateries and amenities, this home offers the perfect blend of peaceful residential living and easy access to everything you need.
Check out whether you can get fibre internet
Meet your new neighbours on Neighbourly