Ray White Albany - Realty Insight

Ray White provides a broad range of real estate services from selling your property to property management. Visit our website to see over 12,000 properties on display.

We are a family owned business. When you choose Ray White, you are choosing over 100 years of experience and a name you can trust. We guarantee it!

Contact us to find out how Ray White can help you when it comes to property.

Ray White Albany
Ideal Real Estate Ltd Licensed REAA(2008)

Real Estate Agents

Ray White Albany - Realty Insight
Ray White Albany - Realty Insight
27C William Pickering Drive
Rosedale
Auckland 0632
Listing #:
ABY32628
Listed:
39 days ago

Fixed Price $839,000

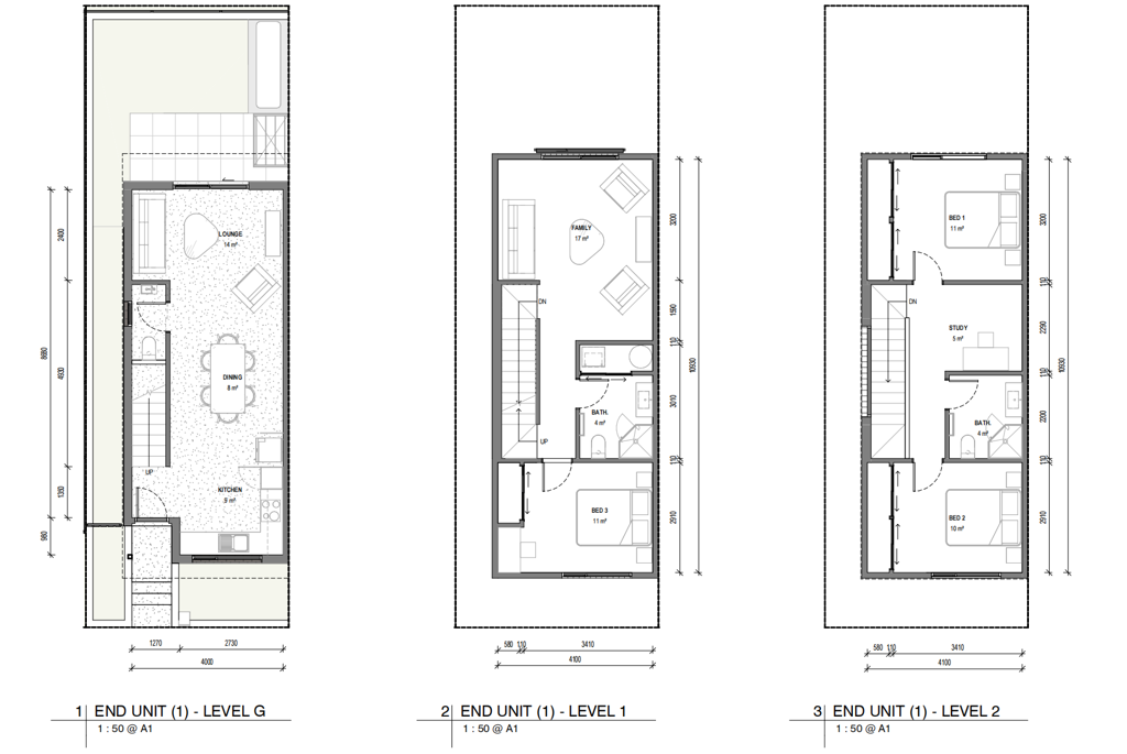
Secure Your 3-Bedroom Home Before Christmas

20 Falcon Crescent, Hobsonville, Waitakere City
Townhouse
bedroom
3 Bedrooms
bathroom
2 Bathrooms
toilet
1 Toilet
carparkoffstreet
1 Offstreet Car Park
floorarea
132m2 Floor Area
landarea
70m2 Land Area
About this property
Special Early Bird Deal - Purchase Before Christmas!

Fixed Price $839,000

Show room & Open Home located nearby at 109 Settlers Ave, Hobsonville.

This is your opportunity to purchase a contemporary new home in the heart of Hobsonville. Thoughtfully designed with modern architecture, these stylish residences offer the perfect balance of quality, comfort & convenience for professionals, couples & young families in a highly desirable location.

Each home features open-plan living, dining & kitchen zones filled with natural light, flowing seamlessly to private outdoor courtyards ideal for entertaining. Premium finishes, double-glazed windows & quality materials ensure warmth & efficiency all year round.

Choose from functional 3-bedroom layouts with 2.5 bathrooms & a separate study. Every residence is freehold, low-maintenance & crafted with enduring style to meet modern living needs.

Features:
• Freehold titles
• Architectural design & modern cladding palette
• Double-glazed & fully insulated for energy efficiency
• Designer kitchens with stone benchtops & quality European appliances
• Private landscaped courtyards & dedicated study

Perfectly positioned near Hobsonville Point's shops, parks & coastal walkways, handy to the motorway, these homes offer easy access to Catalina Bay's cafes, weekend markets & the ferry to Auckland CBD.
Education: Zoned for Hobsonville Point Primary & Secondary Schools, both offering exceptional education within walking distance.

Contact Lily or Louis today for more information & to secure your new home in this limited release.

Sun 7th Dec 1:30pm ~ 3:30pm

Sat 13th Dec 1:30pm ~ 3:30pm

Sun 14th Dec 1:30pm ~ 3:30pm

Sat 20th Dec 1:30pm ~ 3:30pm

Sun 21st Dec 1:30pm ~ 3:30pm

Check out whether you can get fibre internet
Meet your new neighbours on Neighbourly