Ray White Town and Lifestyle

Ray White provides a broad range of real estate services from selling your property to property management. Visit our website to see over 12,000 properties on display.

We are a family owned business. When you choose Ray White, you are choosing over 100 years of experience and a name you can trust. We guarantee it!

Contact us to find out how Ray White can help you when it comes to property.

Ray White Rolleston
Town & Lifestyle Real Estate Ltd Licensed (REAA 2008)

Real Estate Agents

Ray White Town and Lifestyle
Ray White Town and Lifestyle
Suite 10
70 Rolleston Drive
Rolleston 7614
Listing #:
RLL32550
Listed:
61 days ago

$709,000

Secure Your Build Today!

Lot 16 Pinewood Grange, Rolleston, Selwyn
Residential House
bedroom
3 Bedrooms
bathroom
2 Bathrooms
carparkgarage
1 Car Garage
floorarea
140m2 Floor Area
landarea
368m2 Land Area
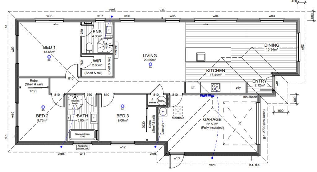
About this property
Please note: These photos are of a previous build by the same builder as the build has not started.

Get ready to fall in love with this brand new, beautifully designed 3-bedroom, 2-bathroom home complete with a single-car garage. Perfectly positioned in a vibrant, family-focused subdivision, this home offers the ultimate in modern comfort, convenience, and lifestyle.

From the moment you step inside, you'll appreciate the thoughtful layout and quality finishes that make this home stand out. The open-plan living area is bright and welcoming, flowing effortlessly from the contemporary kitchen to the dining and lounge spaces - ideal for entertaining friends or spending quality time with family.

The kitchen is the heart of the home, featuring sleek cabinetry, premium appliances, and generous bench space, making everyday living and meal prep a breeze.

The master bedroom provides a peaceful retreat with its own private ensuite, while the additional two bedrooms are perfect for kids, guests, or a home office. The main bathroom is stylish and functional, featuring modern fixtures and a relaxing feel.

Step outside to your easy-care backyard, perfect for alfresco dining, gardening, or simply soaking up the sun. The single-car garage offers secure parking and extra storage for your convenience.

Located in a rapidly expanding area known for its welcoming community spirit, you'll love being close to local schools, playgrounds, and green spaces - everything your family needs is right at your doorstep.

For a private viewing and/or a full information pack on this listing please contact Big Red on brendan.shefford@raywhite.com or Georgia Schofield on georgia.schofield@raywhite.com
Check out whether you can get fibre internet
Meet your new neighbours on Neighbourly