Ray White Botany

Ray White provides a broad range of real estate services from selling your property to property management. Visit our website to see over 12,000 properties on display.

We are a family owned business. When you choose Ray White, you are choosing over 100 years of experience and a name you can trust. We guarantee it!

Contact us to find out how Ray White can help you when it comes to property.

Ray White Botany
Mountfort Estate Agents Ltd Licensed (REAA 2008)

Real Estate Agents

Ray White Botany
Ray White Botany
20 Crescent Lane
East Tamaki
Auckland 2013
Listing #:
BOT31323
Listed:
40 days ago

By Negotiation

Your Dream Home Awaits with a 10-Year Guarantee!

2C Grove Lane, Pakuranga Heights, Manukau City
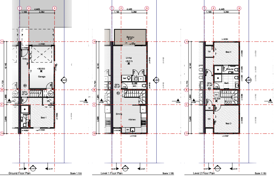
Townhouse
bedroom
3 Bedrooms
bathroom
3 Bathrooms
toilet
1 Toilet
carparkgarage
1 Car Garage
landarea
125m2 Land Area
About this property
Step into luxury, comfort, and peace of mind with this stunning, newly completed, north-facing residence. Boasting high-quality finishes and an exceptional location, this home is fully certified with CCC and Title issued-meaning you can move in sooner!
Plus, enjoy absolute peace of mind with the included 10-Year Master Builder Guarantee.

Key Features You'll Love:

Sun-Drenched Living: A highly desirable north-facing aspect ensures all-day sun.

Three Spacious Bedrooms: Generously sized rooms perfect for families, guests, or a home office.

High-End Finishes: Featuring a stylish kitchen with quality appliances and fittings designed for modern living.

Seamless Indoor-Outdoor Flow: Bright, open-plan living and dining opens directly to a private, fully fenced courtyard-perfect for entertaining and secure play.

Worry-Free Ownership: Built with modern, durable materials and backed by a 10-Year Master Builder Guarantee.

Ready NOW: Both Code Compliance Certificate (CCC) and Title are issued-no delays, no waiting!

Perfectly Positioned for Lifestyle & Convenience:
Set on elevated ground with sun-soaked reserve views, this location is unbeatable.

Walk to Amenities: Minutes to Pakuranga Plaza, supermarkets, essential services, top local schools, childcare centres, and parks.
Lifestyle: Close proximity to the popular Pakuranga Rotary Walkway and excellent public transport options.
Commuter's Dream: Quick motorway access to the CBD, East Tamaki, and Sylvia Park.

Zoned Schools: Pakuranga Heights School, Pakuranga Intermediate, Edgewater College and Sancta Maria College.

Who is this home for?

First-Home Buyers: Secure a premium, brand new start.

Growing Families: Enjoy the space, security, and school proximity.

Savvy Investors: A brand new, desirable rental property in a high-demand area.

Don't miss this rare opportunity to secure a premium, ready-to-move-in home in one of East Auckland's most accessible and established neighbourhoods!

CALL team Adrian TODAY to arrange a private viewing!

Sun 7th Dec 1:30pm ~ 2:00pm

Check out whether you can get fibre internet
Meet your new neighbours on Neighbourly