Clark & Co

Our boutique office is set in the heart of Plimmerton Village, located right next to the beach! Being a little different to the larger offices/companies in the area, we don't specialise in having loads of Sales People. We just specialise in having the good ones, - friendly, honest, genuine and results driven!

Real Estate Agents

Clark & Co
Clark & Co
7B Mana Esplanade
Paremata
Porirua 5026
Listing #:
RX4501880
Listed:
61 days ago

Enquiries Over $2,450,000

A LIFESTYLE FOR ALL SEASONS AND REASONS - BERKELEY

367B Paekakariki Hill Road, Pauatahanui, Wellington
Other
bedroom
4 Bedrooms
bathroom
3 Bathrooms
livingroom
2 Living Rooms
carparkgarage
4 Car Garages
carparkoffstreet
2 Offstreet Car Parks
floorarea
205m2 Floor Area
landarea
4.5 Hectares Land Area
About this property
We're fresh out of superlatives for this one.

Arriving through a driveway lined with old English oak trees, this exquisitely restored villa has been reimagined for modern living while preserving every ounce of its timeless charm. Crafted with meticulous attention to detail, this inspirational home radiates warmth, light, and effortless sophistication.

Bathed in sunshine and designed for complete privacy, this residence seamlessly merges classical elegance with contemporary family living. Generous, free-flowing spaces invite you to relax and entertain in style, extending effortlessly to wide verandas, manicured lawns, and gardens framed by mature trees, orchard plantings, and vibrant cottage gardens.

Exceptional features include:

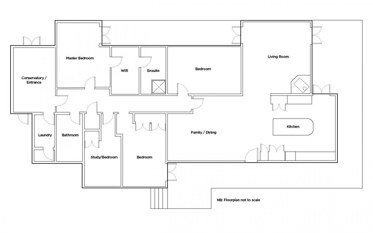
· Three beautifully appointed bedrooms (main bedroom with ensuite) plus a study or optional fourth bedroom

· Entertainers large kitchen with casual and formal dining areas

· Separate one-bedroom studio apartment

For guests or extended family, the self-contained loft studio offers a serene retreat complete with a double bedroom, open-plan living and kitchen, and bathroom.

Beneath the studio is an impressive *128m² garage, perfect for collectors, hobbyists, or those who simply appreciate space for their prized vehicles and workshop pursuits.

Set on *4.55 hectares of picturesque, predominantly flat land, the estate is divided into seven paddocks and includes a hay barn and open area that could easily be converted into equestrian stables—an idyllic haven for horse enthusiasts.

Perfectly positioned just meters from Morgans Golf Course and minutes from Pauatahanui Village—with its boutique café, lighthouse theatre, preschool, and primary school—Berkeley offers a rare balance of country serenity and urban convenience, with easy access to the SH1 motorway.

Berkeley is more than a home—it's a lifestyle masterpiece, designed for those who wish to enjoy the best life!

Call Jason today on 027 483 8808.

*Source of information: Property Guru, Nexus, Porirua City Council (non-verified).
Check out whether you can get fibre internet
Meet your new neighbours on Neighbourly