Marlborough Commercial Limited

Marlborough Commercial are your local experts and we are proud to be Marlborough’s only full-time commercial and industrial sales and leasing team. With over 40 years of combined experience in the real estate sales and marketing industry, we have a consultancy-style business approach aimed at creating strong and rewarding relationships with our clients, potential purchasers, landlords and tenants alike.

Real Estate Agents

Marlborough Commercial Limited
Marlborough Commercial Limited
1 Hutcheson Street
Mayfield
Blenheim 7201
Listing #:
RX4762855
Listed:
67 days ago

$387,000

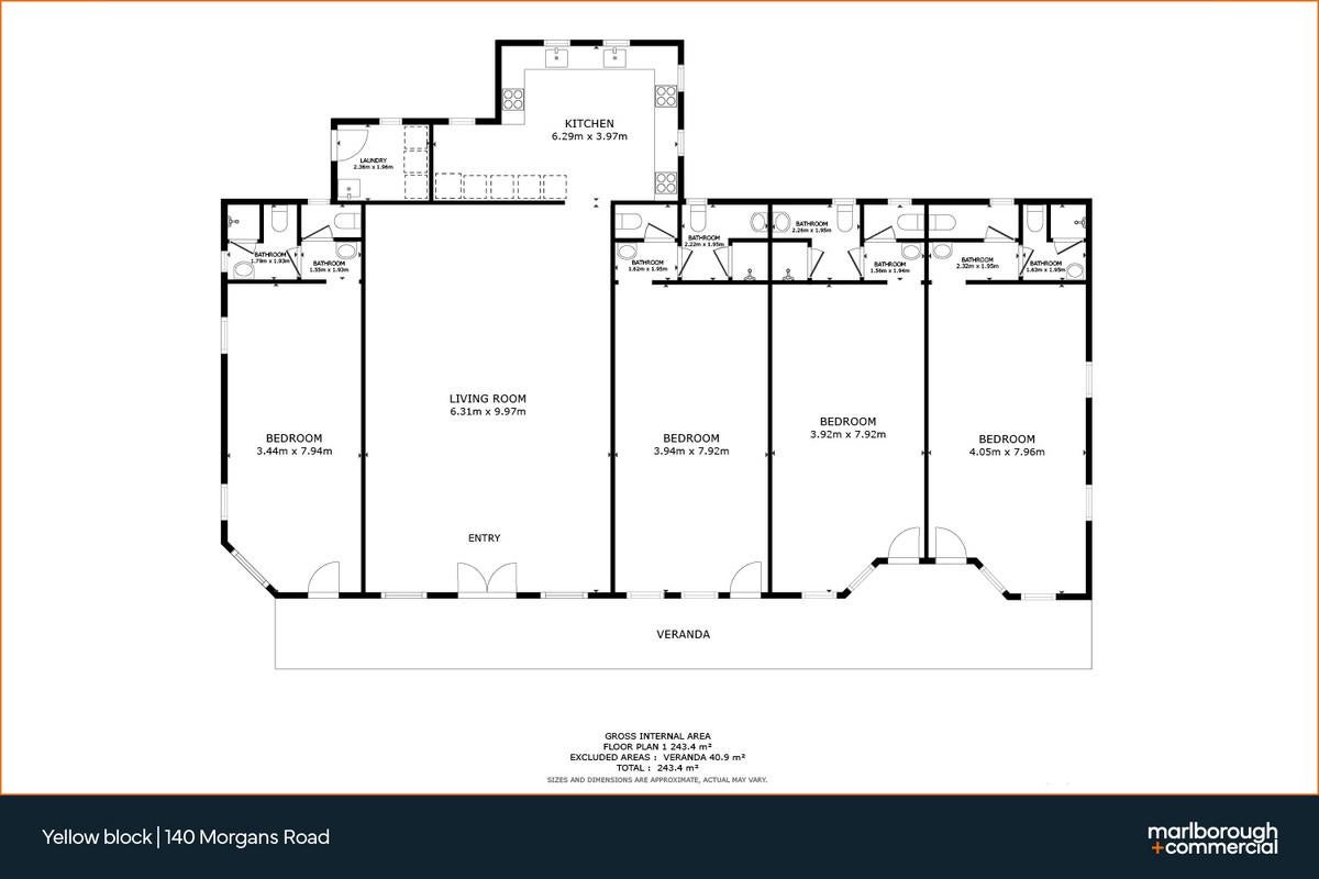
Premiere Turnkey Accommodation Solution

B/140 Morgans Road, Blenheim, Marlborough
Hotel / Leisure
floorarea
879m2 Floor Area
landarea
1.5 Hectares Land Area
About this property
Position your operation in this comprehensively upgraded and well-maintained RSE workers' accommodation facility, purpose-built to support large-scale workforce housing. Now available for lease, this property offers an ideal solution for businesses seeking quality RSE staff accommodation in a convenient Blenheim location.

With capacity for up to 93 workers, the facility includes four primary accommodation buildings, each fitted with modern comforts such as wireless internet, TVs, and king single bunk beds. A separate, self-contained block – complete with its own kitchen, bathroom, and laundry – provides flexibility for independent or smaller groups.

Outdoor amenities include ample on-site parking, a recreational space with a volleyball court, and a designated smoking area, all contributing to a comfortable and community-focused living environment.

Purpose-built and consented as an RSE facility, this site could also be suitable for a range of industries such as construction, viticulture, adventure tourism, or seasonal operations with an additional resource consent. Its adaptable layout and high standard of fit-out make it an excellent base for teams working in the region.

Key features
• Capacity for 93 RSE Workers – Comfortable, modern accommodation across four main
buildings
• Fully Equipped & Self-Contained – Includes kitchens, bathrooms, laundry, Wi-Fi, and TVs

For Lease $387,000 plus GST and Outgoings
Available Now

Virtual Links - Accomodation blocks
Blue block: my.matterport.com...
Green block: my.matterport.com...
Red block: my.matterport.com...
Yellow block: my.matterport.com...

For more information or to view, contact he exclusive agents Grant Thorpe or Zak Thorpe
Check out whether you can get fibre internet
Meet your new neighbours on Neighbourly