Ray White Ellerslie - Now Realty Limited Licensed (REAA 2008)

Ray White provides a broad range of real estate services from selling your property to property management. Visit our website to see over 12,000 properties on display.

We are a family owned business. When you choose Ray White, you are choosing over 100 years of experience and a name you can trust. We guarantee it!

Contact us to find out how Ray White can help you when it comes to property.

Ray White Ellerslie
Now Realty Limited Licensed (REAA 2008)

Real Estate Agents

Ray White Ellerslie - Now Realty Limited Licensed (REAA 2008)
Ray White Ellerslie - Now Realty Limited Licensed (REAA 2008)
Suite 1
101 Main Highway
Ellerslie
Auckland 1051
Listing #:
ELL33771
Listed:
73 days ago

Price on Application

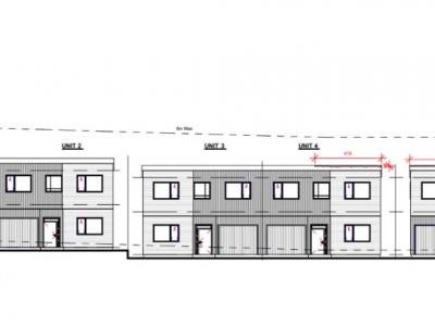
Mt Wellington - THAB zoning

52A Walters Road, Mount Wellington, Auckland City
Residential House
bedroom
2 Bedrooms
bathroom
1 Bathroom
About this property
Attention - Developers, Traders, Builders, Investors this ones for you!

They say location is everything - and this one nails it. Capitalize on this rare opportunity,
tucked away in a private position in the heart of Mount Wellington, this unfinished project is ready for its next chapter. Whether you're a developer, builder, flipper or savvy investor, this is the kind of property that makes smart buyers sit up and take notice.

Sitting on THAB-zoned land, the options are wide open - complete the project, start fresh, or unlock the site's full potential with a new build (subject to council approval). The current owner has held it for over 30 years, and now it's time for someone else to rep the rewards.

Great location and close to:
• Sylvia Park Shopping Centre
• IKEA (opening soon)
• Motorway access (North, South, East)
• Cafés, schools, transport, and everything else that makes Mount Wellington so desirable.

The vendors are motivated, the zoning is gold, and the location is prime. Opportunities like this don't come along often - and they don't last long either.
The vendor is ready to meet the market and wants this property sold on or before Auction day. So don't delay call Daniel Grubjesic NOW on 022 415 4459 for more details.

Lim report & Property file available on request.

Viewing by private appointment only

Check out whether you can get fibre internet
Meet your new neighbours on Neighbourly