Lodge Real Estate - HQ

We're the leading source of Hamilton properties to buy, rent or lease. Residential, commercial and rural lifestyle real estate available. We offer property management services in Hamilton.

Real Estate Agents

Lodge Real Estate - HQ
Lodge Real Estate - HQ
11 Ulster Street
Whitiora
Hamilton 3200
Listing #:
L37260191
Listed:
50 days ago

$965,000

Calling All Character Lovers!

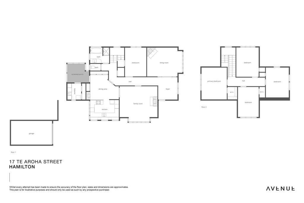
17 Te Aroha Street, Hamilton East, Hamilton
Residential House
bedroom
5 Bedrooms
bathroom
1 Bathroom
carparkgarage
1 Car Garage
carparkoffstreet
2 Offstreet Car Parks
landarea
835m2 Land Area
About this property
Built just over 100 years ago, this stunning 1920s concrete home sits proudly in a sought after enclave of Hamilton East. Impeccably kept by one owner for the last 40+ years the home is handsome from the outset. The section is cleverly planted for privacy with established trees in keeping with the style. The interior of the home is an absolute treat with original native wood features throughout. Upon entry there is a formal sitting room which is bathed in natural light and has a window seat overlooking the front garden.

A hallway with arched window and intricate detailing lead to a second large living space which has stained glass windows and a woodburning fireplace. There is also an open plan kitchen and dining space with windows looking out to a magnificent magnolia tree and capturing the afternoon sun. On the lower level is also a bedroom ideal for guests, a bathroom with separate toilet and sunroom leading to the back garden. Upstairs are four spacious bedrooms with the primary bedroom having a walk in closet.

Outside the section is picturesque with a pergola and walkway through the garden. Those with a green thumb will love the mass of greenery and colour. A single garage is great for parking and storage. At the corner of the street are a variety of shops for convenience including a dairy and butcher. The popular Kirk café is also mere metres from your front door. Spend your weekends strolling to Hamilton East Village via Memorial Park and the river trails. Zoned for all levels of excellent schooling including Hamilton East Primary, HBHS and HGHS this is a home for a family to enjoy for generations to come.

Contact Zoe or James to view!

Sun 7th Dec 12:00pm ~ 12:30pm

Check out whether you can get fibre internet
Meet your new neighbours on Neighbourly