Ray White Wairarapa

"It's always about customer service."

At Ray White, we put you, the customer, at the heart of everything we do. We aim for 10/10 service for every client, every time.

Our agents live and work in their local neighbourhood, so they know the schools, the best cafe’s, the hidden walking trails and the most convenient shopping centres.

Ray White Leaders have always maintained strong relationships with our local communities, therefore our agents have the knowledge and expertise to inspire buyers to imagine a lifestyle in your property and to encourage the best result.

Ray White Wairarapa
Leaders In Real Estate (1987) Limited Licensed (REAA 2008)

Real Estate Agents

Ray White Wairarapa
Ray White Wairarapa
111 Chapel Street
Masterton 5810
Listing #:
MST31758
Listed:
82 days ago

BEO $995,000

Space to Grow, Room to Play - Enviable Location

281H Lees Pakaraka Road, Te Ore Ore, Masterton
Other
bedroom
4 Bedrooms
bathroom
1 Bathroom
toilet
2 Toilets
carparkgarage
2 Car Garages
floorarea
265m2 Floor Area
landarea
1.4 Hectares Land Area
About this property
Set back from the road, this expansive property is accessed via a picturesque tree lined driveway that immediately draws your attention to both the substantial residence and its landscaped surroundings.

Wide open lawns unfold around the property, giving a soothing vision and beckoning to you to further add your stamp to the property. There are a range of fruit trees giving an orchard feel and plenty of established plantings attracting native bird life.

Whether you're admiring the views from inside or entertaining on the sun-soaked patio, every window frames a scene.

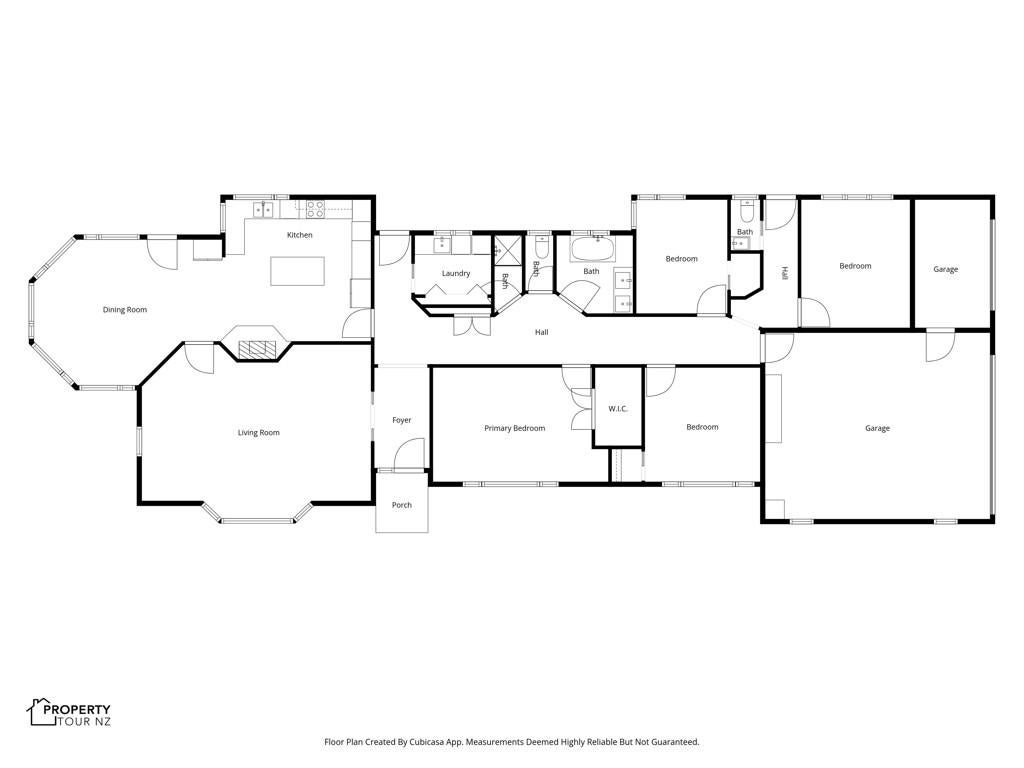
Inside, the home offers a thoughtfully designed layout, featuring a modern kitchen and open plan dining area, four generous bedrooms, a spacious lounge, family bathroom, additional shower room, two separate toilets, and outstanding storage and garaging options. Well presented, this residence offers a peaceful haven in a rural setting.

Set on approximately 1.44 hectares, the property also benefits from two 25,000 litre water tanks and one unit of the Wainuioru water scheme ensuring reliable supply year round.

Located on the highly sought after Lees Pakaraka Road, this is a rare chance to secure a lifestyle property that perfectly balances privacy, comfort, and convenience. Despite its idyllic location at the end of the drive, turn right and you're just a short drive to Masterton (circa 10 minutes) or turn left and the cafes of Carterton beckon only a little further down the line.
BEO $995,000
Contact Tom Roseingrave on 027 433 3216 or Alice Trubshoe on 027 786 6767 for a buyer information pack, or to arrange a viewing.
Check out whether you can get fibre internet
Meet your new neighbours on Neighbourly