Marlborough Commercial Limited

Marlborough Commercial are your local experts and we are proud to be Marlborough’s only full-time commercial and industrial sales and leasing team. With over 40 years of combined experience in the real estate sales and marketing industry, we have a consultancy-style business approach aimed at creating strong and rewarding relationships with our clients, potential purchasers, landlords and tenants alike.

Real Estate Agents

Marlborough Commercial Limited
Marlborough Commercial Limited
1 Hutcheson Street
Mayfield
Blenheim 7201
Listing #:
RX4734775
Listed:
88 days ago

$26,000

Versatile Unit with Mezzanine & Yard Space

1/17 Timandra Place, Blenheim, Marlborough
Industrial / Warehouse
floorarea
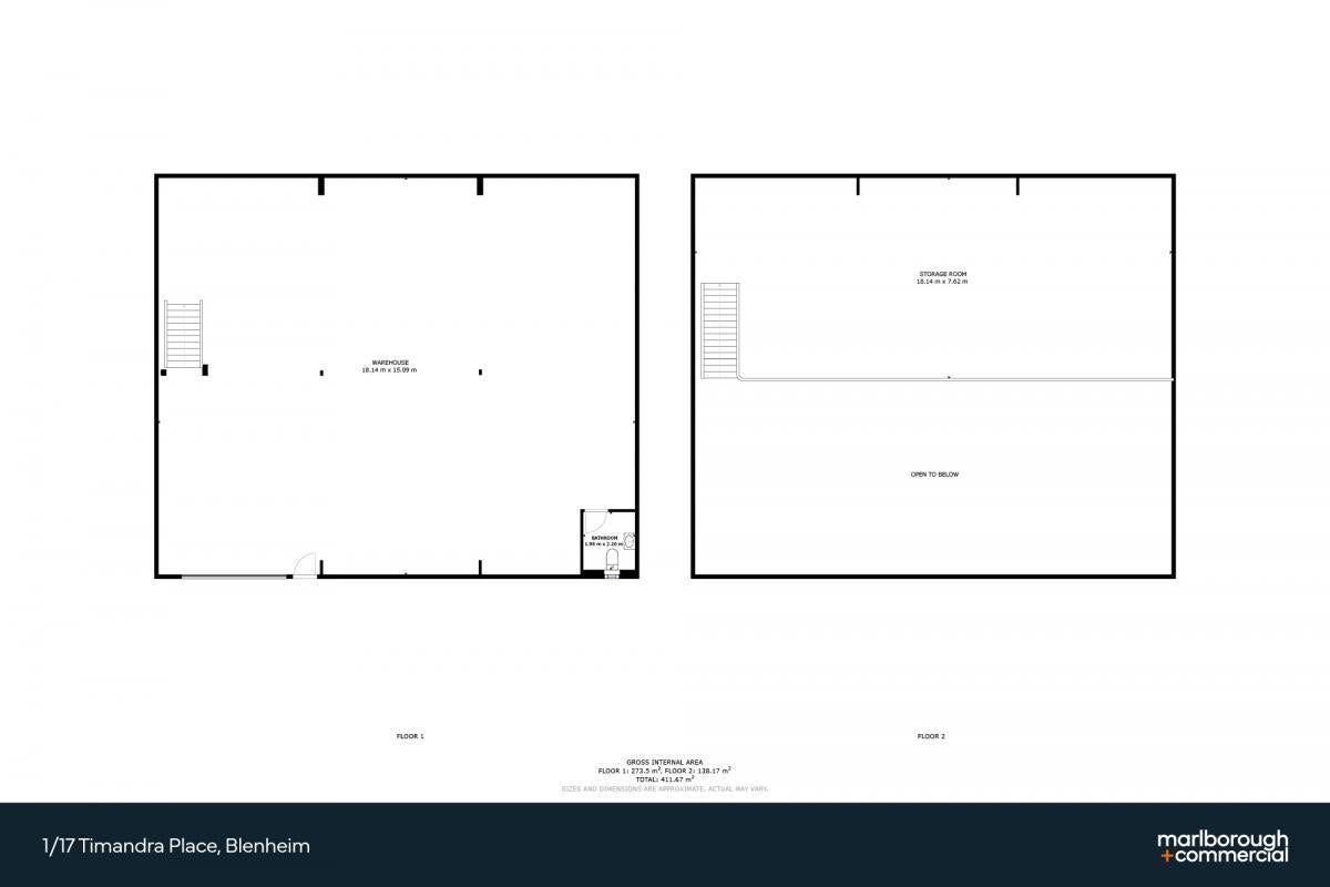
412m2 Floor Area
landarea
90m2 Land Area
About this property
Position your business for success with this well-located industrial unit on a prominent corner just minutes from Blenheim's town centre.

Offering approximately 274sqm (more or less) of ground floor space, this property is complemented by a 138sqm (more or less) mezzanine—perfect for storage or light manufacturing purposes.

The unit is situated in the heart of Blenheim's mixed-use commercial and light industrial precinct, ideal for small to medium enterprises needing both profile and practical functionality.

Access is excellent, with a 4m wide by 3.3m high roller door and separate pedestrian entry, plus a 90sqm (more or less) yard area for parking or operational use.

With a seismic rating of 70%NBS, the unit is equipped with bathroom facilities and a standalone kitchenette sink with instant hot water for added convenience.

Key features
• 412sqm (more or less) total building area including mezzanine
• High-profile corner site with great access and visibility
• Suitable for warehousing, trade retail, or light industrial use For

Lease $26,000 plus GST and Outgoings

Available 26 October 2025

For more information or to view, contact the exclusive agents Zak Thorpe or Grant Thorpe.
Check out whether you can get fibre internet
Meet your new neighbours on Neighbourly