Lugtons Real Estate - Central Hamilton
1010 Victoria Street
Whitiora
Hamilton 3200
Listing #:
CE22369
Listed:
91 days ago

$669,000

Smart investment in a prime position

203B Ohaupo Road, Glenview, Hamilton
Residential House
bedroom
3 Bedrooms
bathroom
2 Bathrooms
carparkgarage
1 Car Garage
floorarea
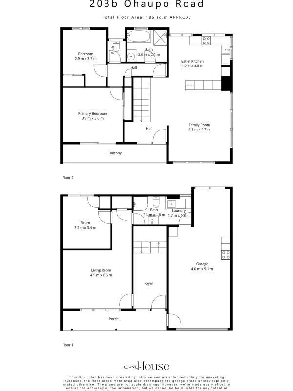
186m2 Floor Area
About this property
This well-appointed home offers space, flexibility, and standout convenience, welcome to 203B Ohaupo Road. Positioned in one of Glenview’s most accessible pockets, just minutes from Waikato Hospital and Glenview Shopping Centre, this property is a smart choice for families, professionals, or investors seeking long-term value. Its solid brick and concrete block construction ensures low maintenance and peace of mind, while thoughtful design elements throughout make everyday living effortless.

Come inside and discover a generous floor plan designed for versatility. The ground floor features one of three bedrooms, a full bathroom with a laundry, and a spacious utility room which is perfect as a second lounge, games room, or office. It also features an internal access garage. The bedroom downstairs opens out to a private courtyard, adding further functionality. Upstairs, the sun-filled, open-plan kitchen, dining, and living area creates a warm and inviting central hub, complete with a balcony ideal for your morning coffee or unwinding in the evening.

The upper level also includes two additional bedrooms, a well-appointed bathroom, and a separate toilet for added convenience. Year-round comfort is ensured with a heat pump, and additional off-street parking along the side of the home makes it easy to accommodate a caravan, campervan, or boat which is a rare bonus in city-fringe properties.

Zoned for popular local schools including Deanwell School, Glenview School, Melville Intermediate, and Melville High School, this address adds strong appeal for families. With easy access to Hamilton’s CBD, airport, and key arterial routes, 203b Ohaupo Road delivers the lifestyle and location to match. Whether you’re upsizing, investing, or seeking flexible spaces to suit a dynamic household, this is a property that simply makes sense.

Get in contact with Del or Josh today for more information.

To access the property files, follow the link below to the Lugtons website where you will be able to download the property files by clicking "information pack".
www.lugtons.co.nz...
Check out whether you can get fibre internet
Meet your new neighbours on Neighbourly