Lowe & Co Realty

Lowe & Co Realty was formed with one goal in mind: to focus on delivering the best possible price for people selling their homes. We believe this is achieved by having the right people and the right culture. Our core values are strategy, teamwork, training, technology, collaboration, and fun.

When you choose Lowe & Co, you don’t just get one agent; you get an entire team working tirelessly to achieve the best possible result. We were previously the highest performing salespeople for Wellington's largest real estate agency. You can call any one of us and know that you are getting the best. We work full time, with all types of property, and together we have over 40 years of local experience.

When real estate is paramount, get us in, compare us against the competition, and see why our process is way out in front. You can expect an intense focus on getting the very best price for your home.

Lowe & Co Realty. Behold the difference.

Real Estate Agents

Lowe & Co Realty
Lowe & Co Realty
8 Kent Terrace
Mount Victoria
Wellington 6011
Listing #:
LOWE7600
Listed:
69 days ago

BEO $649,000

City Views, Waterfront Vibes, Outstanding Value

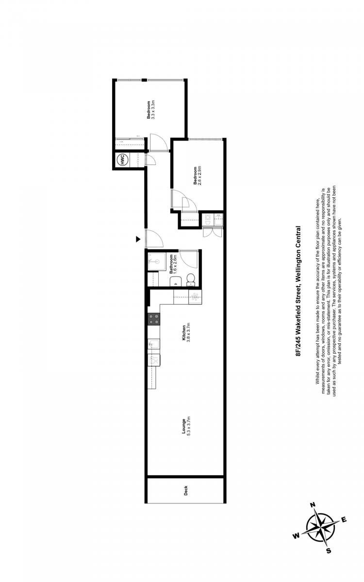
8F/245 Wakefield Street, Te Aro, Wellington
Residential Unit
bedroom
2 Bedrooms
bathroom
1 Bathroom
carparkgarage
1 Car Garage
floorarea
81m2 Floor Area
About this property
Positioned on one of the upper floors of a modern building, this spacious two-bedroom apartment combines inner-city living with unbeatable privacy, views, and value. Whether you're after your first home, a stylish Wellington base, or a future-proof investment, this Te Aro gem delivers.

- Elevated 8th-floor position capturing fantastic city views and natural light
- Expansive open-plan living with generous lounge and dining zones
- Two well-proportioned double bedrooms with great separation from living
- Full bathroom with separate laundry-rare for apartment living
- Secure, covered carpark within the building for total convenience
- Modern, well-run building with Body Corporate fees of $1,134.30 pa (carpark) + $10,696.35 pa (Apartment)
- Outstanding central location-moments from the waterfront, Te Papa, and Courtenay Place, with easy access to the CBD and Mt Victoria
- Buyer Enquiry Over $649,000-representing exceptional value in this location
- RV's combined: $663,000 ($580,000 + $83,000 Apartment + carpark)^

Ideal for professionals, downsizers, or city-loving first-home buyers wanting security, space, and style in the heart of the action - Contact Aaron today for the information pack or to arrange a viewing.

^Source of Information: Property Guru, Nexus, Wellington City Council (non-verified)
Check out whether you can get fibre internet
Meet your new neighbours on Neighbourly