RE/MAX Revolution

The RE/MAX franchise network is a global real estate system of franchisee owned and operated offices and their affiliated independent professionals.

RE/MAX affiliates lead the industry in professional designations, experience and production.

Real Estate Agents

RE/MAX Revolution
RE/MAX Revolution
611 Great South Road
Manukau
Auckland 2104
Listing #:
L36049025
Listed:
112 days ago

Price by Negotiation

7.5% Net Return 12-Years Long-Term Lease

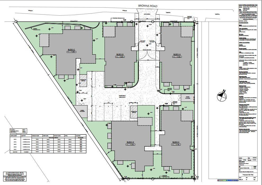
118 Browns Road, Manurewa, Manukau City
Residential House
bedroom
15 Bedrooms
bathroom
15 Bathrooms
floorarea
100m2 Floor Area
landarea
473m2 Land Area
About this property
Calling sophisticated investors! With a brand-new lease signed, on offer is a hassle-free investment with guaranteed government-backed tenants for 12-years!

This complex is made up of 5 individual freehold standalone buildings, each with 15 studio rooms with guaranteed net income of 7.5% per annum (after deduction of rates and management fees).

The vendor is providing finance! If you have 25% deposit, the vendor will charge you 5% interest rate (interest-only for the first year) and then P&I for up to four years after that, providing you with instant cash-flow!

Investment Highlights
- 5 Individual Freehold Titles - Each with its own standalone building, on a separate freehold title, and individually leased on long-term contracts
- 12-Year Leases with Rights of Renewal - Secure, long-term tenancies
- Net Yield of 7.5% - After deduction of rates and management fees
- Net Rental per Building $267,875 + GST P.A.
- Fully Managed - Common areas overseen by Browns Road Management Ltd (no body corporate required)
- Net Lease Structure - Tenants cover insurance and compliance obligations
- Completed in July 2023
- The Lessee, Maranga Fanau, is a Charitable Trust. The Trust's tenants are provided with the backing of the New Zealand Government.

Strategic Location Benefits
- Positioned in the heart of Manurewa, this property offers tenants direct access to critical infrastructure and lifestyle amenities:
- Adjacent to Homai Railway Station - Seamless access to Auckland's Southern Line
- On Major Bus and Arterial Routes - Enhanced mobility for residents
- Hundreds of Public Carparks - Directly opposite the site
- Walking Distance to Countdown Supermarket & Laundry Services
- Close to Major Employers and Local Services

Enquire now for a full information pack, lease schedule, and financials.

Call Don Ha Projects Now!
Don Ha: 021 968 309
Ketan Patel: 021 262 8041

*Terms and conditions apply.
Check out whether you can get fibre internet
Meet your new neighbours on Neighbourly