Ray White Wellington City

Ray White provides a broad range of real estate services from selling your property to property management. Visit our website to see over 12,000 properties on display.

We are a family owned business. When you choose Ray White, you are choosing over 100 years of experience and a name you can trust. We guarantee it!

Contact us to find out how Ray White can help you when it comes to property.

Real Estate Services, Real Estate Agents

Ray White Wellington City
Listing #:
KOR30699
Listed:
121 days ago

By Negotiation

Life STYLE

43A Donald Street, Karori, Wellington
Residential House
bedroom
3 Bedrooms
bathroom
2 Bathrooms
ensuite
1 Ensuite
toilet
2 Toilets
carparkoffstreet
1 Offstreet Car Park
floorarea
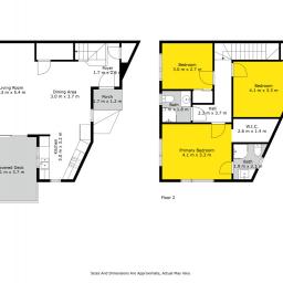
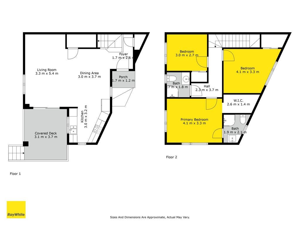
112m2 Floor Area
About this property
Designed with convenience in mind, this brand-new townhouse offers modern, low-maintenance living right in the heart of Karori. Featuring 3 double bedrooms and 2 bathrooms(approx 112m2) and west facing for great sun.
Schools, shops, the library, and the swimming pool are all just a short stroll away-making this the ideal spot for busy families or professionals.

The open-plan kitchen, dining, and living space is light-filled and opens to a sunny west facing deck, creating a comfortable hub for everyday life.

Upstairs, there are three bedrooms, including a master with ensuite and walk in robe, plus a sleek tiled family bathroom. With full insulation and double glazing throughout, year-round comfort is assured.

A large storage and utility room downstairs is perfect for bikes, sports gear, or extra household items.

If you've been searching for a simple, stylish home that puts lifestyle and location first, 43 Donald Street is it.


*Some photos have been virtually staged.

Check out whether you can get fibre internet
Meet your new neighbours on Neighbourly