Walker & Co

Real Estate Agents

Walker & Co
Walker & Co
10 Coronet Peak Station Road
9371
Listing #:
RX4644724
Listed:
120 days ago

Enquiries Over $1,995,000

Space, Views and Comfort!

27B Rannoch Drive, Jacks Point, Central Otago / Lakes District
Residential House
bedroom
3 Bedrooms
bathroom
3 Bathrooms
livingroom
2 Living Rooms
carparkgarage
3 Car Garages
floorarea
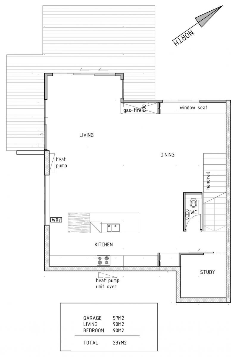
237m2 Floor Area
landarea
301m2 Land Area
About this property
From the moment you arrive at 27b Rannoch Drive, the 237sqm home makes a statement. Striking schist stonework frames the exterior, while a bespoke wide cedar garage door offers both elegance and practicality providing seamless internal access and secure parking for three vehicles. The driveway includes an off-street park and is framed by established gardens and hedging, creating a warm and inviting welcome.

Step inside the foyer and you're immediately drawn to the internal schist feature wall and the generous staircase that leads to the heart of the home. The first floor unfolds into a series of beautifully designed spaces, including a cozy TV snug, guest powder room, a functional study nook, and a generous breakfast bar perfect for casual dining or entertaining.

The chef's kitchen is a showstopper: finished in sleek gloss white cabinetry, it features double ovens, induction and gas hobs, ample storage, a butler's pantry and pull-out cupboards. The open-plan living and dining areas are expansive and filled with light, showcasing uninterrupted views across Jack's Point Golf Course and the surrounding mountain ranges. Boasting over 100sqm of wraparound private Kwila decking, the outdoor living experience is truly unparalleled. The expansive front-facing deck offers sweeping panoramic views, perfect for enjoying breathtaking sunsets and fresh alpine air. At the rear, a secluded and spacious deck provides the ideal setting for entertaining guests or unwinding.

For year-round comfort, the living areas are equipped with a heat pump, an Escea gas fireplace, and a built-in window seat with clever storage.

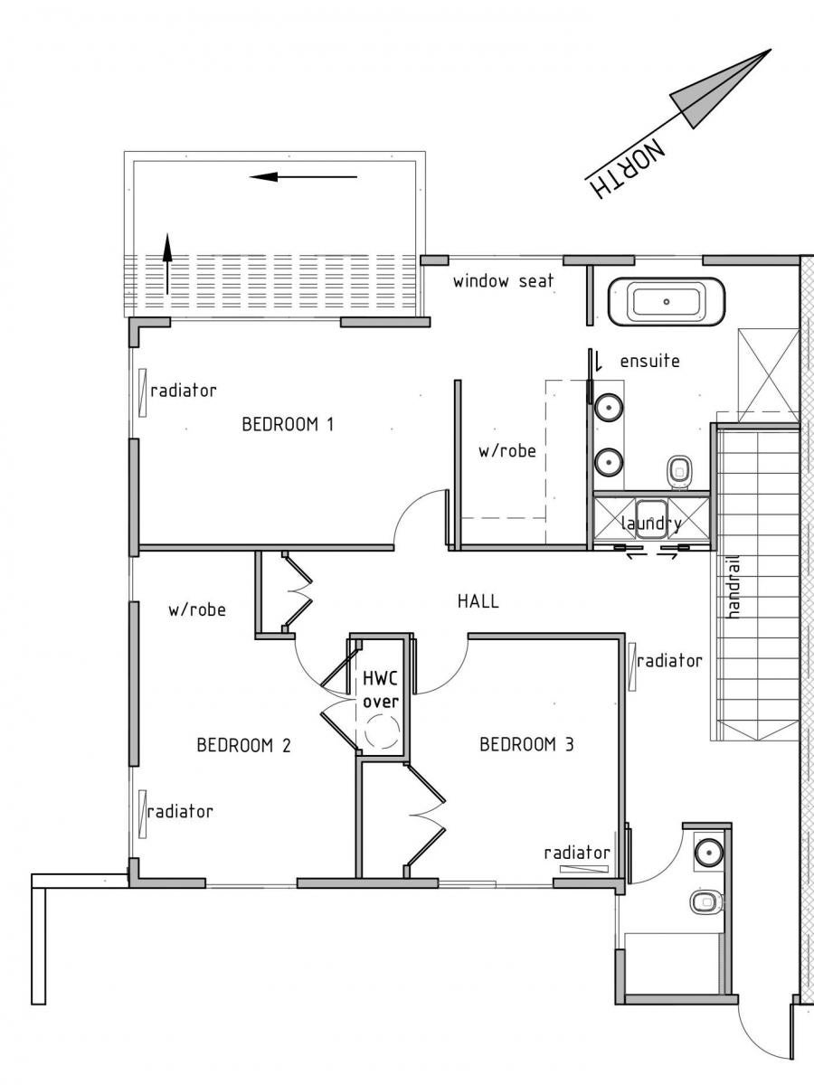
Upstairs, the home continues to impress. From the rear door, you'll glimpse the dramatic peaks of The Remarkables. A central hallway connects three generous bedrooms and a beautifully appointed bathroom with a double shower. A discreetly hidden laundry and linen cupboard enhance the home's functionality.

The guest bedroom opens directly to a private courtyard-style deck, while the second bedroom easily accommodates two singles, both with large double wardrobes, additional storage space and uninterrupted views of The Remarkables. The master suite is a sanctuary, complete with his-and-her wardrobes, a window seat with storage, and a luxurious ensuite featuring a full bath, walk-in shower and dual vanities. West-facing windows allow abundant light to fill this space.

Designed by award-winning Kerr-Ritchie Architects and built to exceptional standards by the acclaimed team at Just Build It, 27b Rannoch is a rare find. This is no ordinary townhouse—it is a high-performance home, built with premium materials to ensure warmth in winter, cool comfort in summer, and enduring long lasting quality throughout.
As if that's not enough the property also features abundant under staircase storage and gas radiators.

Located just five minutes' walk (approx) from the Jack's Point Clubhouse Restaurant and upcoming commercial precinct this home offers the perfect blend of alpine serenity and urban convenience.

Don't miss the opportunity to own one of Jack's Point's finest residences.
Check out whether you can get fibre internet
Meet your new neighbours on Neighbourly