Lugtons Real Estate - Central Hamilton
1010 Victoria Street
Whitiora
Hamilton 3200
Listing #:
CE22170
Listed:
143 days ago

$729,000

Effortless living

29A Carrs Road, Chartwell, Hamilton
Residential House
bedroom
2 Bedrooms
bathroom
1 Bathroom
carparkgarage
1 Car Garage
floorarea
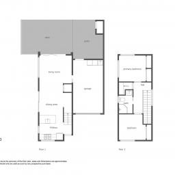
92m2 Floor Area
landarea
260m2 Land Area
About this property
Deceiving from the road, this freehold home offers more than meets the eye. Low maintenance and with no compromise on style, it’s perfectly suited for those seeking comfort without the upkeep.

The well designed living opens up to an impressive outdoor area through large bifold doors blending indoor and outdoor spaces seamlessly. Brand new laminate flooring has been installed, giving a fresh, contemporary finish and a well positioned study nook is on offer for those work from home days. The kitchen is functional and light with plenty of storage and is complete with a gas cooktop.

Upstairs, you'll find two generous bedrooms serviced by a central bathroom and a large walk in linen cupboard. Double glazed and with gas hot water, efficiency and comfort is front of mind.

Outside, the home is complete with large decking perfect for entertaining, capturing all day sun in the fully fenced garden. There is internal access garaging with an additional off street park. This home is an ideal option for buyers looking for a smart, stylish, and easy care property in a great location. Greenhill Park is within close proximity to green spaces, Chartwell shopping centre, The Waikato expressway and the CBD.

Contact me for a private viewing today or join me at an open home.

Abbie Naylor 027 765 9901
Check out whether you can get fibre internet
Meet your new neighbours on Neighbourly