Ray White Morris & Co Real Estate Limited
188 High Street
Waimakariri
Rangiora 7400
Listing #:
PGS30659
Listed:
195 days ago

Price By Negotiation

Secure It Now, almost complete!

6 Lintott Street, Kaiapoi, Waimakariri
Residential House
bedroom
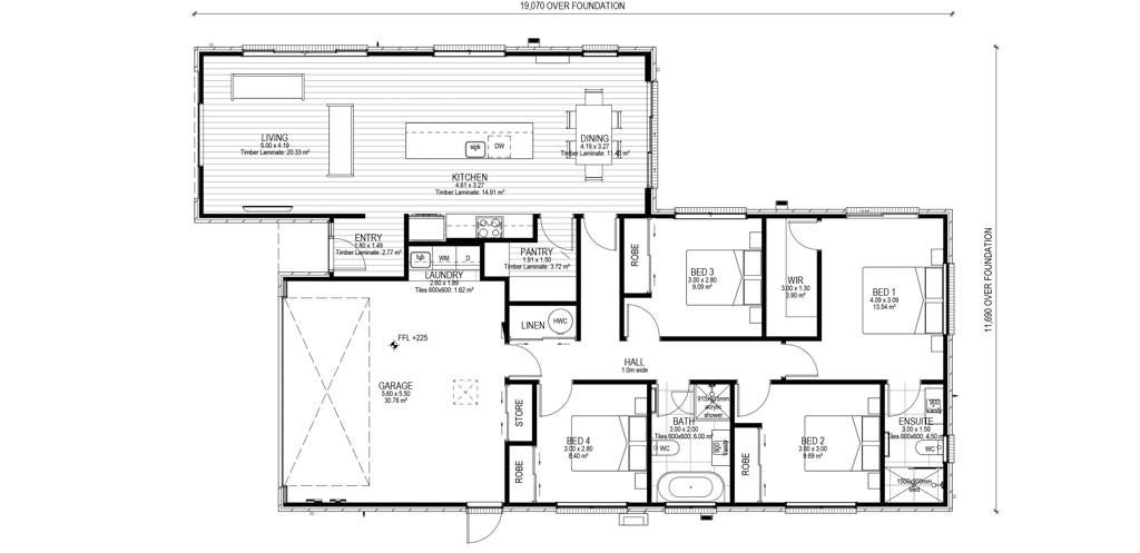
4 Bedrooms
bathroom
2 Bathrooms
carparkgarage
2 Car Garages
floorarea
175m2 Floor Area
landarea
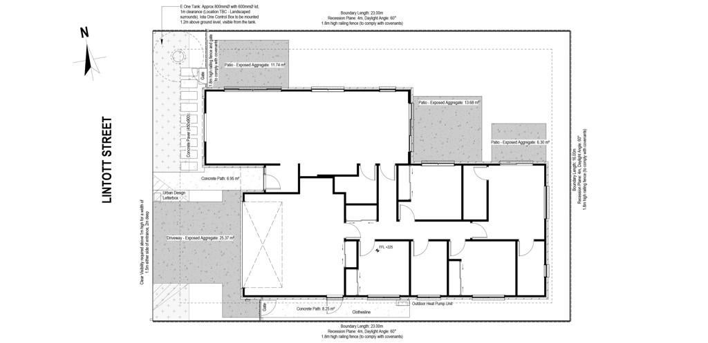
368m2 Land Area
About this property
Brand New and Ready to Move In for the New Year! Step into style and comfort with this stunning new four-bedroom home in the heart of Kaiapoi's Beach Grove community. Designed to maximise space, sun, and indoor-outdoor living, the open-plan kitchen, dining, and living area flows effortlessly to a fully landscaped, private section, perfect for entertaining year-round.

Every detail has been carefully considered, from the quality fixtures in the family bathroom and tiled ensuite, to the practical luxury of an internal access double garage.

Premium features include:

Sleek stone benchtop
Samsung appliances
Tiled shower
Walk-in wardrobe in the master suite
Walk-in pantry
Godfrey Hirst flooring

Just 900 metres from central Kaiapoi and moments from beaches, rivers, cycling trails, and golf courses, this location offers the ultimate lifestyle with Christchurch city only a short commute away.

An exceptional new home in a thriving location. Get in contact with Tony and make it yours today!
Check out whether you can get fibre internet
Meet your new neighbours on Neighbourly