RAINE & HORNE ALEXANDRA

Real Estate Agents

RAINE & HORNE ALEXANDRA
RAINE & HORNE ALEXANDRA
33b Tarbert Street
Alexandra
Listing #:
L34630389
Listed:
217 days ago

$945,000

The Downs at St Bathans

26 Dunstan Creek Road, St Bathans, Central Otago
Other
bedroom
5 Bedrooms
bathroom
1 Bathroom
carparkgarage
2 Car Garages
landarea
12.2 Hectares Land Area
About this property
The classic farm homestead is no longer just seen on the tele with The Downs at St Bathans ready for you and the whole family to create your dynasty.

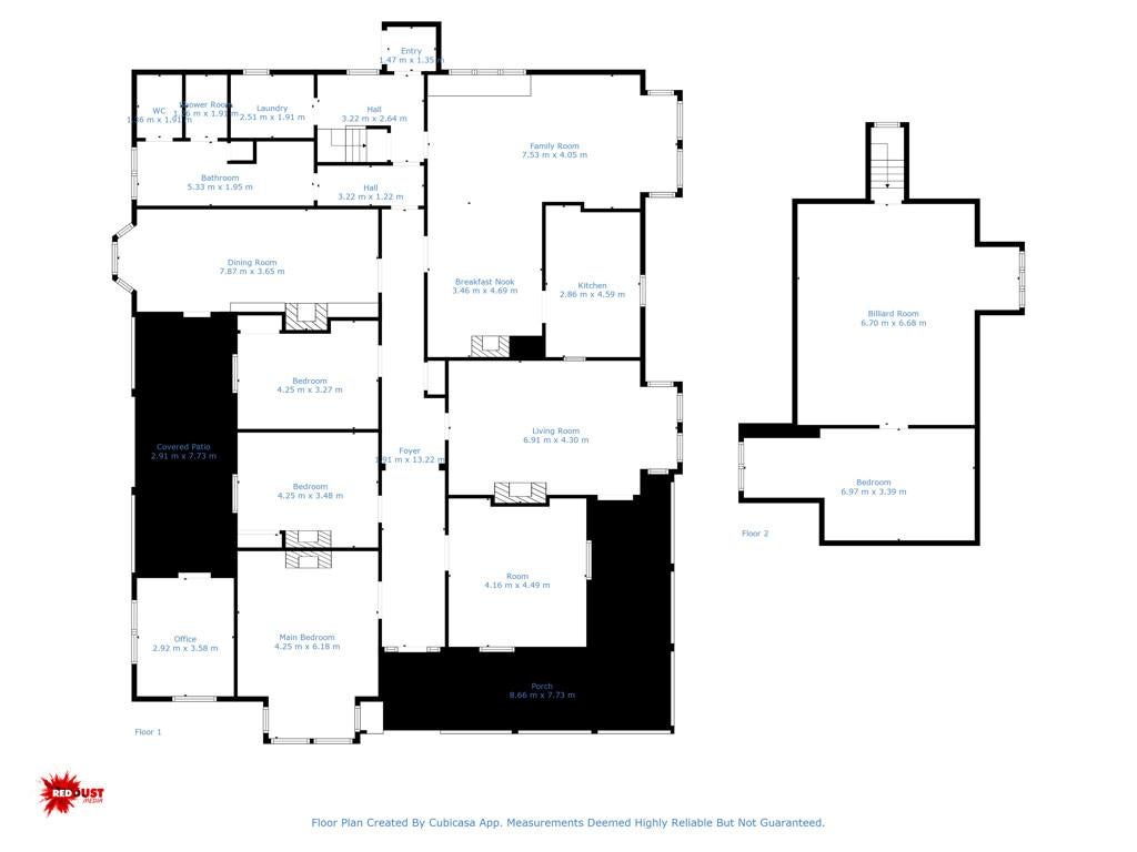
Located on approximately 12 hectares in one of Central Otago and New Zealand's sought-after locations, The Downs has everything required to live comfortably. It's a large home, larger than we're used to in 2025, with the kitchen, family room and breakfast area all located on the downstairs floor, adjacent to a separate formal lounge and separate formal dining room. Four bedrooms, the office and bathroom are also set on the first floor with the billiards room and fifth bedroom on the upper floor. The wrap-around porch and covered patio area are great spaces for outdoor entertaining while the tennis court (not fit for tennis right now) is a throw back to early 1900s rural living. There's a multitude of outbuildings on the property including a separate double garage, cool stores and shed space.

The Downs has its own irrigation water supply and its own domestic drinking water supplied by a Spring and the property has had most boundary fencing upgraded recently.

Finally, the setting is epic with views to the surrounding Hawkdun Range and Mt St Bathans in a location where few people venture. It's perfect if you're looking to be away from it all, but within a 40 minute drive of Alexandra and its amenities. The old girl needs some attention, having been vacant now for a number of months, but the keen-eyed buyer will see the potential. Families, holiday home buyers and history buffs take note, this is a great opportunity for you.

Call Rhys Chamberlain today for more information.

Please be aware that this information has been sourced from third parties. View our property information disclaimer here: raineandhorne.co.nz/property-disclaimer.
Check out whether you can get fibre internet
Meet your new neighbours on Neighbourly