Ray White Remuera

Ray White provides a broad range of real estate services from selling your property to property management. Visit our website to see over 12,000 properties on display.

We are a family owned business. When you choose Ray White, you are choosing over 100 years of experience and a name you can trust. We guarantee it!

Contact us to find out how Ray White can help you when it comes to property.

Ray White Remuera
Megan Jaffe Real Estate Ltd Licensed (REAA 2008)

Real Estate Agents

Ray White Remuera
Ray White Remuera
411 Remuera Road
Remuera
Auckland 1050
Listing #:
RMU43222
Listed:
193 days ago

Enquiries Over $699,000

Standalone Freehold, Full of Light

49B Clayburn Road, Glen Eden, Waitakere City
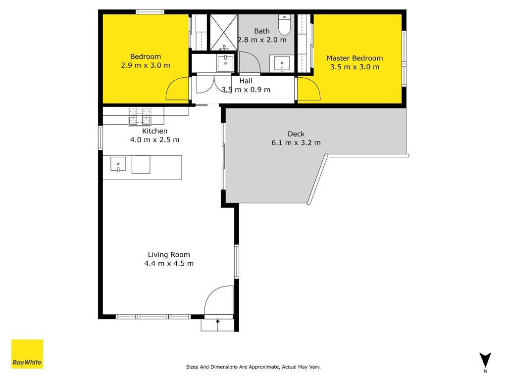
Residential House
bedroom
2 Bedrooms
bathroom
1 Bathroom
carparkoffstreet
2 Offstreet Car Parks
landarea
167m2 Land Area
About this property
Step into your future with this light-filled, low-maintenance freehold home - ideal for first-home buyers or investors looking for an easy, stress-free option.

Currently tenanted until February 2026, it's a great opportunity to earn rental income while you plan your move. Prefer to move in sooner? A shorter settlement could be negotiated.

What You'll Love:

• Private & Standalone - Tucked away from the road for peace and privacy.
• Single-Level Ease - Functional layout with effortless flow.
• Open-Plan Living - Sun-soaked kitchen, dining, and lounge that extend seamlessly to the outdoors.
• Sunny Entertainer's Deck - Perfect for BBQs, morning coffee, or evening relaxation.
• Two Generous Bedrooms - Each with built-in wardrobes.
• Modern Bathroom + Separate Laundry - A rare and practical bonus.
• Off-Street Parking - Room to fence the section for kids or pets.

Location Highlights:

• Moments from Clayburn Reserve - dog-friendly and fully fenced.
• Close to Glen Eden Train Station, local schools, shops, and cafés.
• Everything you need is right here.

All serious offers will be considered. Don't wait - opportunities like this don't last.

Contact us today for your private viewing:

Angelina Vihrova - 021 727 751
Kristy Chen - 020 4149 0233
Check out whether you can get fibre internet
Meet your new neighbours on Neighbourly