Ray White Epsom

Ray White Black Group Realty have established themselves as the pre-eminent real estate brand and industry leaders in the premium property market. A dedicated team of professionals committed to excellence in client service and satisfaction work tirelessly representing the full gamut of customers’ interests from buyers, sellers, developers and investors.
Black Group’s Epsom operation is supported by more than 1,600 networked agents (across 156 national Ray White offices) working co-operatively to expose your property to a database of 9,000 buyers and 750,000 recipients of our property alerts.
The Black Group Team’s elite service and exceptional outcomes are driven by an accumulation of each individual agent’s intimate local market knowledge, focused campaigns and decisive negotiation and closing tactics.

Real Estate Agents

Ray White Epsom
Ray White Epsom
349A Manukau Road
Epsom
Auckland 1023
Listing #:
EPS34169
Listed:
9 days ago

Price By Negotiation

A Grand Opportunity:

30 Granville Drive, Massey, Waitakere City
Residential House
bedroom
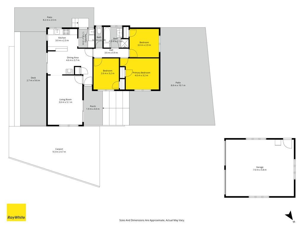
3 Bedrooms
bathroom
1 Bathroom
toilet
1 Toilet
carparkgarage
2 Car Garages
carparkoffstreet
4 Offstreet Car Parks
floorarea
90m2 Floor Area
landarea
989m2 Land Area
About this property
Here's a Rare Investment Opportunity in the Highly Coveted Location of Royal Heights.

Opportunities like this don't come along often. Set on an expansive 989m² (more or less) of premium land, 30 Granville Drive presents an exceptional chance for astute buyers to secure a future-focused investment in one of Auckland's most in-demand growth pockets.

Zoned Mixed Use - Suburban, this property opens the door to a wide range of development possibilities, allowing you to expand, develop, or land-bank to suit your long-term ambitions. Development-ready sites of this scale in Royal Heights are tightly held and increasingly hard to find - making this a truly rare offering.

Privately positioned up a secluded driveway, the existing well-presented 1980s three-bedroom home enjoys elevated views across Moire Park and the popular Tuhura Playground. Extensive decking flows effortlessly to an enormous, sun-soaked rear lawn - a backyard of proportions many can only dream of.

Completing the package is a large freestanding double garage, along with generous, secure off-street parking - ideal for families, tradies, developers or tenants alike.

The lifestyle appeal here is undeniable. With a prized northeasterly orientation along the upper harbour, close proximity to major retail precincts, and easy public transport links - including a short bus ride to the Hobsonville ferry terminal - this address offers exceptional connectivity and convenience.

With the vendors relocating north and highly motivated to meet the market, this is your chance to secure a blue-chip investment with genuine upside.

Rare. Strategic. Future-proof.

Don't let this one slip away.
Check out whether you can get fibre internet
Meet your new neighbours on Neighbourly