Ray White Remuera

Ray White provides a broad range of real estate services from selling your property to property management. Visit our website to see over 12,000 properties on display.

We are a family owned business. When you choose Ray White, you are choosing over 100 years of experience and a name you can trust. We guarantee it!

Contact us to find out how Ray White can help you when it comes to property.

Ray White Remuera
Megan Jaffe Real Estate Ltd Licensed (REAA 2008)

Real Estate Agents

Ray White Remuera
Ray White Remuera
411 Remuera Road
Remuera
Auckland 1050
Listing #:
RMU41593
Listed:
18 days ago

Auction (Unless Sold Prior)

Thu 11th Dec 12:00pm

DECLARED RESERVE under $1.2m, CV $1.6m

110 Bassett Road, Remuera, Auckland City
Residential House
bedroom
1 Bedroom
bathroom
1 Bathroom
carparkoffstreet
2 Offstreet Car Parks
floorarea
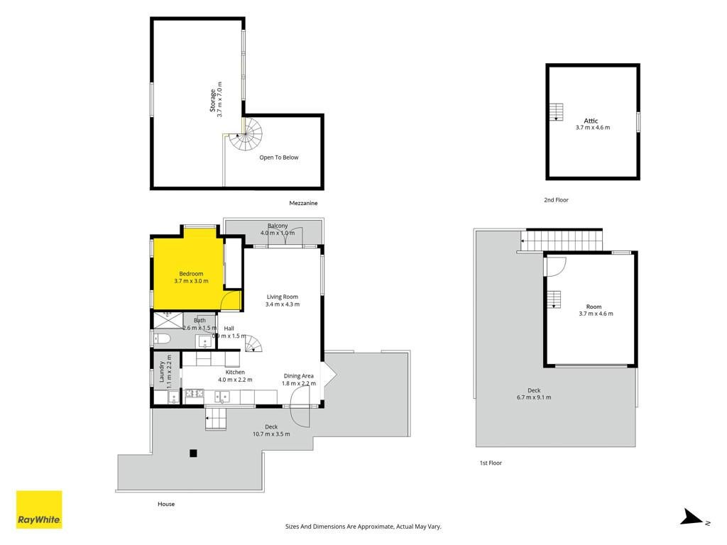
73m2 Floor Area
About this property
**AUCTION: 12pm, Thursday 11 December 2025, 411 Remuera Road, Remuera (Unless Sold Prior)**

REMUERA DGZ WEATHERBOARD COTTAGE - DECLARED RESERVE under $1.2m, CV $1.6m

Download Files: filefling.co.nz...

Calling all first home buyers, investors and those wanting a sunny, snug bolt hole, moments to Newmarket and close to Bloodworth Park and the boardwalks of Hobson Bay.

This home has been a stellar investment for our owners for two decades and has recently been renovated, so all the hard work has been done. Turn key living with all day sunshine and manicured English-style terraced gardens.

One double bedroom plus a large mezzanine upstairs, a sunny lounge room with lofty ceilings, a modern galley-style kitchen and open plan dining. A separate bathroom and laundry room as well. Great flow to outdoor seating and dining, as well as the bonus of a loft for a work-from-home option on the street level.

Off-street parking plus an extra park for a small vehicle. We have included concept plans showcasing a stunning renovation, which was mooted by our current owners.


A great package and excellent schooling options. Secure before Christmas and start the New Year with a great postcode.

The mezzanine floor is staged as a bedroom and the garage is staged as extra living space for marketing purposes.


• Crosslease

• Floor Area: 73sqm (approx.)

• Land Area: 1/2 share of 535sqm (mol)

• Council Rates: $4,803.66 p/a (2025/26)

• CV: $1,600,000 (2024)

• School Zones: Newmarket School, Remuera School, Remuera Intermediate, Auckland Grammar School, Epsom Girls Grammar School, Baradene College

• Residential - Single House Zone

• Rental Appraisal: $700 - $750 per week


Please call JAYNE KIELY 021 352 007 or AMY ROBERTSON 0274 820 100

We work with all agencies. Conjunctions are welcome.
Check out whether you can get fibre internet
Meet your new neighbours on Neighbourly