Ray White Beach Haven

Ray White provides a broad range of real estate services from selling your property to property management. Visit our website to see over 12,000 properties on display.

We are a family owned business. When you choose Ray White, you are choosing over 100 years of experience and a name you can trust. We guarantee it!

Contact us to find out how Ray White can help you when it comes to property.

Ray White Beach Haven
Carpenter Realty Ltd Licensed (REAA 2008)

Real Estate Agents

Ray White Beach Haven
Ray White Beach Haven
350 Rangatira Road
Beach Haven
Auckland 0626
Listing #:
GLF31986
Listed:
38 days ago

Enquiries over $799,000

Welcome Home!

2/30 Anne McLean Drive, Glenfield, North Shore City
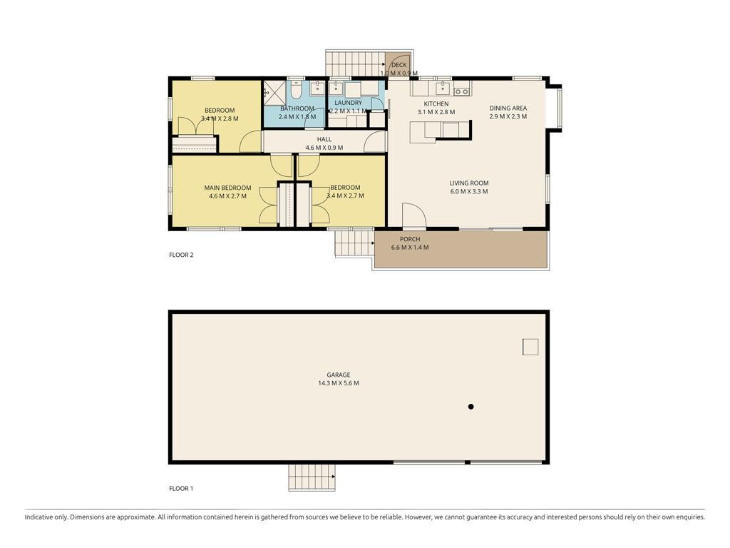
Residential House
bedroom
3 Bedrooms
bathroom
1 Bathroom
carparkgarage
2 Car Garages
carparkoffstreet
4 Offstreet Car Parks
floorarea
80m2 Floor Area
About this property
Tucked away at the end of a private driveway, this charming 3-bedroom home offers a wonderful sense of peace and privacy, surrounded by native trees and the gentle sound of birdsong.

Step inside and feel instantly at home. The open-plan living and dining area captures beautiful views of nature and flows effortlessly onto a sunny balcony - the perfect spot to relax with a coffee or enjoy the summer evenings. With plenty of natural light and warm afternoon sun, this home feels bright, cosy, and full of charm.

The stylish kitchen features a breakfast bar and a lovely outlook to greenery, making everyday living a pleasure. All three bedrooms come with full wardrobes for easy storage, and there's a separate, spacious laundry with outdoor access for added convenience.

This home is ideal for first home buyers, families, couples, or anyone looking for a tranquil lifestyle close to everything.

You'll also love the generous double garage and extra off-street parking, perfect for guests or multiple vehicles.

Located in the heart of Bayview, Anne McLean Drive is close to everything you need, Glenfield Mall, local shops, great schools, daycare, parks, and all local amenities.

Come and experience the charm, comfort, and serenity this lovely home has to offer.
Check out whether you can get fibre internet
Meet your new neighbours on Neighbourly