Ray White Remuera

Ray White provides a broad range of real estate services from selling your property to property management. Visit our website to see over 12,000 properties on display.

We are a family owned business. When you choose Ray White, you are choosing over 100 years of experience and a name you can trust. We guarantee it!

Contact us to find out how Ray White can help you when it comes to property.

Ray White Remuera
Megan Jaffe Real Estate Ltd Licensed (REAA 2008)

Real Estate Agents

Ray White Remuera
Ray White Remuera
411 Remuera Road
Remuera
Auckland 1050
Listing #:
RMU44048
Listed:
54 days ago

Asking Price $859,000

Vendors Left Auckland - Priced To Sell

42B Ferndale Road, Mount Wellington, Auckland City
Residential House
bedroom
3 Bedrooms
bathroom
2 Bathrooms
carparkcovered
1 Covered Car Park
carparkoffstreet
2 Offstreet Car Parks
floorarea
120m2 Floor Area
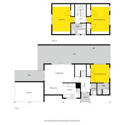
About this property
Bordering Ellerslie, this standalone contemporary residence combines effortless liveability with intelligent design. Every detail of the layout has been carefully considered to maximise space, light, and family functionality.

Privately positioned away from the street, the home welcomes you with off-street parking for two cars plus a covered carport. Inside, a generous sense of openness defines the main living zone - the kitchen, dining, and lounge connect seamlessly, creating a fluid environment ideal for everyday life and relaxed entertaining. Large sliding doors invite you outdoors to a sheltered alfresco deck, perfectly oriented for year-round enjoyment.

Families will appreciate the expansive, fully enclosed outdoor area, offering both safety and freedom. Two lush lawn areas provide ample room for play equipment, pets, or weekend gatherings - a rare luxury in this city-fringe setting. The ground-floor master bedroom, complete with its own bathroom, offers flexibility for visiting guests, extended family, or those wanting their own private retreat.

Upstairs, two spacious double bedrooms enjoy elevated light and warmth, serviced by a central family bathroom. There is some double glazing throughout which ensures a quiet, comfortable environment in every season.

Set in thriving Mt Wellington, this location places you moments from Ellerslie Village, Sylvia Park, and Lunn Avenue's eateries and retail. With easy motorway and rail access, commuting becomes a rarity rather than a routine.

For those seeking the independence of a freestanding home, generous outdoor living, and a floor plan crafted for modern family life, this residence delivers enduring value and effortless appeal.

Agent Conjunctionals Welcome.

Ben Ryken | 021 179 8914 | #TrustTheProcess
Check out whether you can get fibre internet
Meet your new neighbours on Neighbourly