Ray White Beach Haven

Ray White provides a broad range of real estate services from selling your property to property management. Visit our website to see over 12,000 properties on display.

We are a family owned business. When you choose Ray White, you are choosing over 100 years of experience and a name you can trust. We guarantee it!

Contact us to find out how Ray White can help you when it comes to property.

Ray White Beach Haven
Carpenter Realty Ltd Licensed (REAA 2008)

Real Estate Agents

Ray White Beach Haven
Ray White Beach Haven
350 Rangatira Road
Beach Haven
Auckland 0626
Listing #:
SVD30979
Listed:
87 days ago

By Negotiation

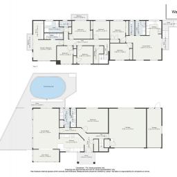
5 Bedroom home + 2 bedroom income

26 Waldorf Crescent, Orewa, Rodney
Residential House
bedroom
7 Bedrooms
bathroom
3 Bathrooms
ensuite
1 Ensuite
carparkgarage
3 Car Garages
floorarea
341m2 Floor Area
landarea
771m2 Land Area
About this property
This impressive property offers the ultimate in flexible family living with genuine income potential. Set on prestigious Waldorf Crescent, this substantial home delivers space, style, and financial opportunity all in one exceptional package.

The main residence features five spacious bedrooms providing room for the whole family, along with two separate living areas perfect for family dynamics. The master bedroom offers complete privacy with a dedicated ensuite and walk-in wardrobe, complemented by a family bathroom for the remaining bedrooms. Outside, you'll find your own private swimming pool oasis and a triple car garage offering secure parking plus plenty of storage space.

Adding tremendous value is the legal two-bedroom home that provides you rental income. This is perfect for mortgage assistance or investment return, and equally ideal for extended family living or as a teenage retreat.

The location on Waldorf Crescent is one of Orewa's most sought-after addresses. You'll be close to Orewa Beach with easy access to shops, cafes, and local amenities. Excellent schooling options are nearby.

Don't miss this rare opportunity to secure a premium Orewa property with genuine dual-living potential. Contact us today to find out more and discover your new coastal lifestyle.
Check out whether you can get fibre internet
Meet your new neighbours on Neighbourly